
Christian Müller Immobilien GmbH & Co. KG
Herr Frederic Winnewisser
004 ···
Nr. anzeigenPreise & Kosten
Kaution
3 Monatskaltmieten
Provision für Mieter
2 Monatskaltmieten inkl. MwSt.
Warum sehe ich diese Anzeige? – Du siehst diese Anzeige basierend auf Ihrer Navigation auf unserer Website und den Suchkriterien, die du verwendet hast.
Lage
Das neue Güterbahnhofareal nördlich vom Freiburger Stadtzentrum hat sich in kürzester Zeit zu einem begehrten und neuen Quartier entwickelt. Hier finden die Lebenswelten Wohnen, Arbeiten und Freizeit gekonnt zusammen. Moderne und denkmalgeschützte Architektur ergänzen sich zu einer attraktiven Mischung.
Auf dem neuen...
Büro-/Praxisfläche
Kategorie
Bürofläche
Energie & Heizung
Warum sehe ich diese Anzeige? – Du siehst diese Anzeige basierend auf Ihrer Navigation auf unserer Website und den Suchkriterien, die du verwendet hast.
Weitere Energiedaten
Haustyp
KfW 55
Details
Objektbeschreibung
Willkommen in Ihrem zukünftigen Firmendomizil!
Dieses ansprechende Neubauprojekt eines Bürogebäudes, dessen Bau Ende 2025 beginnen wird, überzeugt durch seine moderne Architektur, großen Fensterflächen und hochwertige Ausstattung. Es bietet exklusiven Mietern die Möglichkeit, ihre Vorstellungen von einem...
Ausstattung
- Aufzug in alle Ebenen
- Tiefgarage und Außenstellplätze
- Glasfaser für eine schnelle Internetverbindung
Ausführlichere Informationen und weitere Bilder erhalten Sie über eine Anfrage auf unserer Homepage:
Preisinformation
18,50 EUR/m², 6 Stellplätze
30 Tiefgaragenstellplätze
Weitere Informationen
Sonstiges
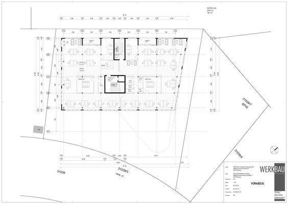
Flächen sind folgend teilbar:
EG gesamt ca. 640 m² und teilbar ab ca. 400 m²
1. OG gesamt ca. 660 m² und teilbar ab ca. 200 m²
2. OG gesamt 680 m² und teilbar ist ab ca. 300 m²
Flächenanfragen können gerne gestellt werden.
Stichworte
Gesamtfläche: 1.980,00 m², Distanz zur...
Anbieter der Immobilie
Online-ID: 2lb7d5f
Referenznummer: IKSS21
Finde Angebote wie dieses
Hier geht es zu unserem Impressum, den Allgemeinen Geschäftsbedingungen, den Hinweisen zum Datenschutz und nutzungsbasierter Online-Werbung.