

IMMOVISTA GmbH - Immobilienmakler Dresden
Herr Henry Brömme-Herrmann
004 ···
Nr. anzeigenPreise & Kosten
Provision für Käufer
Bitte beachte, das Angebot kann bei Vertragsabschluss die Zahlung einer Provision beinhalten. Weitere Informationen erhältst Du vom Anbieter.
Lage
Der Stadtteil Laubegast ist wegen seiner idyllischen Lage an der Elbe eine sehr gefragte Wohngegend mit hohem Grünanteil. Die herrschaftlichen Häuser im Stadtteil sind überwiegend saniert oder neu entstanden. Neu sanierte Straßen und Wege sowie eine sehr gute Infrastruktur unterstreichen die Attraktivität des beliebten...
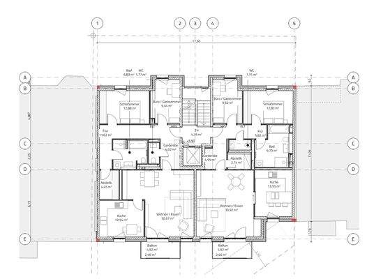
Die Wohnung
Wohnungslage
1. Geschoss
Energie & Heizung
Warum sehe ich diese Anzeige? – Du siehst diese Anzeige basierend auf Ihrer Navigation auf unserer Website und den Suchkriterien, die du verwendet hast.
Weitere Energiedaten
Energieträger
Elektro
Heizungsart
Zentralheizung
Details
Objektbeschreibung
In ruhiger, idyllischer Lage einer Seitenstraße des beliebten Stadtteils Laubegast, entsteht ein kleines Mehrfamilienhaus mit 7 Wohnungen. Durch die hochwassersichere Bauweise, beginnen die Wohnungen im 1. Obergeschoss, im Erdgeschoss findet man die Garage.
Der hohe Anspruch an den Energiestandard der Gebäudehülle sowie...
Ausstattung
- Aufzug
- Balkon
- energieeffizienter Neubau
- Garage (zzgl. 26.000 €)
- Abstellräume als Keller im Erdgeschoss
- Jalousien
- Fußbodenheizung
- Parkettboden
Weitere Informationen
Sonstiges
Das Angebot ist freibleibend und unverbindlich. Alle Informationen und Daten wurden nach bestem Wissen gemacht und beruhen auf Angaben unserer Auftraggeber. Eine Zwischenvermarktung bleibt vorbehalten. Die Angebote und Mitteilungen sind nur für den Empfänger persönlich bestimmt und müssen vertraulich behandelt...
Anbieter der Immobilie

Online-ID: 2lbcm5w
Referenznummer: 8608_1a
Finde Angebote wie dieses
Hier geht es zu unserem Impressum, den Allgemeinen Geschäftsbedingungen, den Hinweisen zum Datenschutz und nutzungsbasierter Online-Werbung.