
Volksbank Jade-Weser Immobilien GmbH
Frau Corinna Müller
004 ···
Nr. anzeigenPreise & Kosten
Provision für Käufer
3,57% inkl. MwSt.
Lage
Schortens ist eine Stadt im Landkreis Friesland in Niedersachsen. Der Ort erhielt 2005 die Stadtrechte und ist seitdem nach Varel die zweitgrößte Stadt im Landkreis Friesland. Seit dem 6. Dezember 2011 ist die Stadt staatlich anerkannter Erholungsort.
Die Stadt umfasst die zwölf Stadtteile Schortens, Heidmühle...
Das Haus
Kategorie
Mehrfamilienhaus
Baujahr
1982
Bezug
Vereinbarung
Derzeitige Nutzung
vermietet
Energie & Heizung
Warum sehe ich diese Anzeige? – Du siehst diese Anzeige basierend auf Ihrer Navigation auf unserer Website und den Suchkriterien, die du verwendet hast.
Energieausweistyp
Bedarfsausweis
Gebäudetyp
Wohngebäude
Baujahr laut Energieausweis
1982
Wesentliche Energieträger
GAS
Gültigkeit
bis 02.08.2033
Effizienzklasse
E
Endenergiebedarf
151,50 kWh/(m²·a)
Weitere Energiedaten
Energieträger
Gas
Details
Objektbeschreibung
In ruhiger Lage von Schortens-Grafschaft, auf einem ca. 654 m² großen Eigentumsgrundstück, befindet sich dieses gepflegte und solide Zweifamilienhaus. Zwei Garagen direkt neben dem Haus gehören zum Angebot.
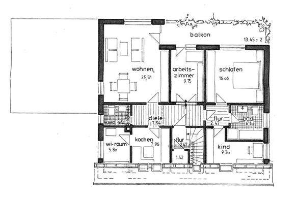
Über das Treppenhaus betreten Sie das Gebäude. Die Erdgeschosswohnung bietet auf ca. 100 m² das Wohnzimmer und...
Ausstattung
- 2 Gasthermen (DG Bj. 2009 + EG Bj. 2014)
- EG-Wohnung mit Terrasse und Garten
- OG-Wohnung mit Balkon
- Dachboden gedämmt
- 2 Garagen
Preisinformation
2 Garagenstellplätze
Weitere Informationen
Stichworte
Nutzfläche: 130,00 m², Anzahl der Badezimmer: 2, Anzahl der separaten WCs: 2, Anzahl Balkone: 1, Anzahl Terrassen: 1
Sonstiges/Wohnen: Dachboden
Anbieter der Immobilie
Volksbank Jade-Weser Immobilien GmbH
Bürgermeister-Heidenreich-Str. 5, 26316 Varel
Online-ID: 2lbdr5h
Referenznummer: 9029
Finde Angebote wie dieses
Hier geht es zu unserem Impressum, den Allgemeinen Geschäftsbedingungen, den Hinweisen zum Datenschutz und nutzungsbasierter Online-Werbung.