

Oliver Mösch Immobilien...for modern living
Herrn Oliver Mösch
020 ···
Nr. anzeigenPreise & Kosten
Provision für Käufer
2,98 % inkl. MwSt.
Die Provision in Höhe von 2,98 % inkl. MwSt. vom Gesamtkaufpreis sind bei notarieller Beurkundung fällig und verdient.
Lage
Königshardt zählt zu den besten Wohnlagen Oberhausens. Das Umfeld ist geprägt von gepflegten Einfamilienhäusern, viel Grün und hervorragender Infrastruktur. Einkaufsmöglichkeiten, Schulen, Kindergärten und Freizeitangebote befinden sich in unmittelbarer Nähe. Die Verkehrsanbindung ist optimal - sowohl zur A3/A2 als auch in...
Das Haus
Kategorie
Doppelhaushälfte
Baujahr
1989
Bezug
01.05.2026
Energie & Heizung
Warum sehe ich diese Anzeige? – Du siehst diese Anzeige basierend auf Ihrer Navigation auf unserer Website und den Suchkriterien, die du verwendet hast.
Energieausweistyp
Verbrauchsausweis
Gebäudetyp
Wohngebäude
Wesentliche Energieträger
Gas
Gültigkeit
29.09.2025 bis 28.09.2035
Effizienzklasse
D
Endenergieverbrauch
101,20 kWh/(m²·a) - Warmwasser enthalten
Weitere Energiedaten
Energieträger
Gas
Heizungsart
offener Kamin
Details
Objektbeschreibung
Willkommen in einer der begehrtesten Wohnlagen in Oberhausen! Die Doppelhaushälfte überzeugt durch ihr äußerst gepflegtes Erscheinungsbild und ihre hochwertige Ausstattung. In Kombination mit der großzügigen, durchdacht gestalteten Raumaufteilung und dem ansprechenden Wohnumfeld wird dieses Haus Sie begeistern.
Die...
Ausstattung
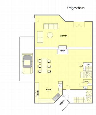
Erdgeschoss und Obergeschoss (Wohneinheit 1), ca. 123m², Fussbodenheizung:
EG:
- Diele mit Gäste-WC und Abstellraum
- offene Küche (verbleibt im Haus, Preis €5.000,-)
- Essbereich
- Wohnzimmer mit Split-Level (2 Stufen) und Ausgang zur Terrasse
DG:
- 2 Schlafzimmer
- großes Bad mit Wanne, Dusche (2021)...
Preisinformation
1 Garagenstellplatz
Weitere Informationen
Sonstiges
Alle Angaben basieren auf Aussage des Eigentümers, Irrtümer vorbehalten. Bitte beachten Sie, dass wir vor einer Besichtigung einen aktuellen Finanzierungsnachweis (Bonität) oder einen entsprechenden Eigenkapitalnachweis vorliegen haben müssen.
Stichworte
Garage vorhanden, Anzahl der Schlafzimmer: 3...
Anbieter der Immobilie
Oliver Mösch Immobilien...for modern living
Im Torfveen 28, 46147 Oberhausen

Online-ID: 2lbdx5z
Referenznummer: 150
Finde Angebote wie dieses
Hier geht es zu unserem Impressum, den Allgemeinen Geschäftsbedingungen, den Hinweisen zum Datenschutz und nutzungsbasierter Online-Werbung.