
Auinger & Partner Gewerbe-Immobilien
Herr Bernd Auinger ============ Auinger & Partner Gewerbe-Immobilien
093 ···
Nr. anzeigenPreise & Kosten
Kaution
3 Monatskaltmieten bzw. nach Absprache
Provision für Mieter
3,57 Monatskaltmieten inkl. 19 % MWSt.
Warum sehe ich diese Anzeige? – Du siehst diese Anzeige basierend auf Ihrer Navigation auf unserer Website und den Suchkriterien, die du verwendet hast.
Lage
Der Neubau liegt in Margetshöcheim nahe der Staatsstraße, ca. sieben Kilometer nördlich von Würzburg.
Der Ort ist über mehrere Buslinien gut angebunden.
Bis zur Würzburger Stadtgrenze sind es ca. 5 km. Mit dem Auto erreichen Sie die Würzburger Innenstadt in bequemen 15 Fahrminuten.
Auf die A3+A7 kommen Sie über...
Büro-/Praxisfläche
Baujahr
2026
Bezug
ab Baufertigstellung, 2027
Details
Objektbeschreibung
Objektbeschreibung
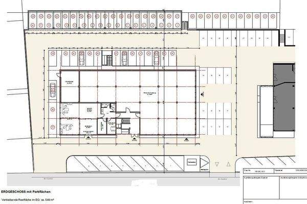
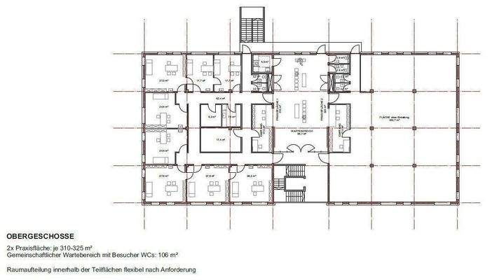
PROJEKTIERTE BÜRO-/PRAXIS-/DIENSTLEISTUNGSFLÄCHE
IN STARK FREQUENTIERTER SICHTLAGE IN MARGETSHÖCHHEIM
(EG, 1. + 2. OG möglich)
Hier entsteht eine moderne und flexible Gewerbefläche, die individuell nach Mieterwunsch gestaltet wird. Die Flächen eignen sich ideal für Büro-, Praxis- oder...
Weitere Informationen
Besichtigungstermine
Haben wir Ihr Interesse geweckt?
Dann zögern Sie nicht und kontaktieren Sie uns gleich unter 0931-452700 oder per E-Mail unter info[at]auinger-immobilien.de
Bitte beachten Sie, dass wir nur Anfragen beantworten können, bei denen uns Name und Anschrift inklusive Telefonnummer des Interessenten...
Dokumente
Anbieter der Immobilie
Auinger & Partner Gewerbe-Immobilien
Theaterstraße 1-3, 97070 Würzburg
Herr Bernd Auinger ============ Auinger & Partner Gewerbe-Immobilien
Dein Ansprechpartner
093 ···
Nr. anzeigenOnline-ID: 2lbeh5k
Referenznummer: Büro/PraxisM-2-
Finde Angebote wie dieses
Hier geht es zu unserem Impressum, den Allgemeinen Geschäftsbedingungen, den Hinweisen zum Datenschutz und nutzungsbasierter Online-Werbung.