

Aengevelt Immobilien GmbH & Co KG
Frau Jean Schlößner
+49 ···
Nr. anzeigenPreise & Kosten
Provision für Mieter
provisionsfrei
Warum sehe ich diese Anzeige? – Du siehst diese Anzeige basierend auf Ihrer Navigation auf unserer Website und den Suchkriterien, die du verwendet hast.
Lage
Das Objekt befindet sich im Südwesten der Landeshauptstadt Magdeburg, im Stadtteil Sudenburg. Die Halberstädter Straße zählt dank ihrer zentralen, verkehrsgünstigen und werbewirksamen Lage zu den bedeutendsten Einkaufs- und Geschäftsstraßen von Magdeburg. Entlang der hochfrequentierten Straße hat sich im Laufe der Jahre ein...
Büro-/Praxisfläche
Kategorie
Bürofläche
Bezug
Nach Vereinbarung
Energie & Heizung
Warum sehe ich diese Anzeige? – Du siehst diese Anzeige basierend auf Ihrer Navigation auf unserer Website und den Suchkriterien, die du verwendet hast.
Wärme
Strom
Energieausweistyp
Verbrauchsausweis
Gebäudetyp
Nicht-Wohngebäude
Wesentliche Energieträger
Erdgas leicht
Gültigkeit
seit 18.11.2013
Endenergieverbrauch (Wärme)
73,50 kWh/(m²·a)
Endenergieverbrauch (Strom)
24,70 kWh/(m²·a)
Weitere Energiedaten
Energieträger
Gas
Heizungsart
Zentralheizung
Details
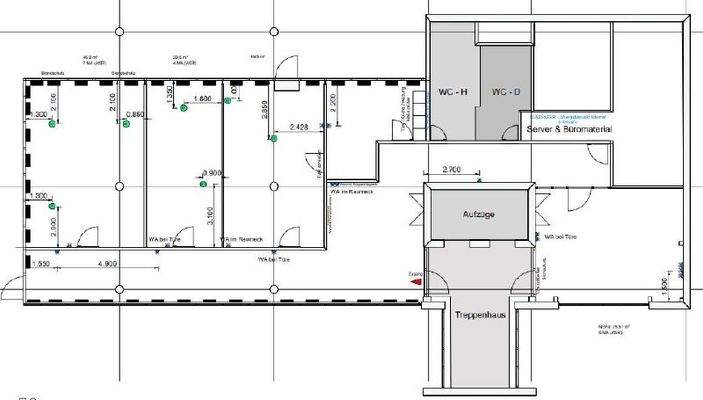
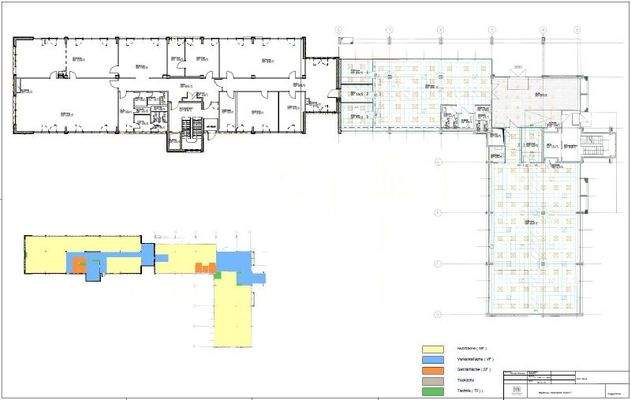
Objektbeschreibung
Das Objekt Halberstädter Straße 17 wurde in zwei Bauabschnitten errichtet. Der südliche Gebäudeteil wurde 1996 und der nördliche Gebäudeteil wurde 2002 errichtet. Die Haupteingänge befinden sich parallel zur Halberstädter Straße. Die Vertikalerschließung erfolgt über das Treppenhaus und den Personenaufzug vom Untergeschoss...
Ausstattung
Die einzelnen Büroetagen können mit einem flexiblen Trennwandsystem individuell zusammengeschlossen oder abgetrennt werden. Mit diesem System sind unterschiedlichste Grundrisse und mieterbezogene Flächengestaltungen realisierbar. Das gesamte Objekt ist mit einer außenliegenden Verschattung ausgestattet und verfügt über einen...
Weitere Informationen
Stichworte
Stellplatz vorhanden, Gesamtfläche: 3.673,22 m², 5 Etagen
Anbieter der Immobilie
Aengevelt Immobilien GmbH & Co KG
Kennedydamm 55/Ross-Strasse, 40476 Düsseldorf

Online-ID: 2lbgq5r
Referenznummer: 37545
Finde Angebote wie dieses
Hier geht es zu unserem Impressum, den Allgemeinen Geschäftsbedingungen, den Hinweisen zum Datenschutz und nutzungsbasierter Online-Werbung.