
König Immobilien GmbH
Herr Jürgen König
004 ···
Nr. anzeigenPreise & Kosten
Provision für Käufer
Bitte beachte, das Angebot kann bei Vertragsabschluss die Zahlung einer Provision beinhalten. Weitere Informationen erhältst Du vom Anbieter.
Lage
Vellmar grenzt an die nördliche Grenze der Großstadt Kassel, wobei die Bebauung beider Städte vielerorts ineinander übergeht. Die vier Vellmarer Stadtteile sind Niedervellmar, Frommershausen, Obervellmar und Vellmar-West, Vellmar hat ca. 19.000 Einwohner. Vellmar ist besonders über die Bundesstraßen 7 und 83, die...
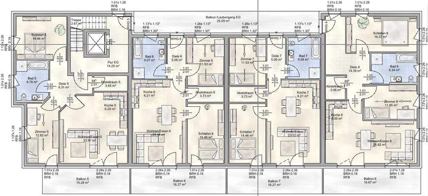
Die Wohnung
Wohnanlage
Energie & Heizung
Warum sehe ich diese Anzeige? – Du siehst diese Anzeige basierend auf Ihrer Navigation auf unserer Website und den Suchkriterien, die du verwendet hast.
Weitere Energiedaten
Heizungsart
Fußbodenheizung, Luft-/Wasser-Wärmepumpe
Details
Objektbeschreibung
IProjektübersicht:
In der begehrten Wohnlage von Vellmar, im Stadtteil Frommershausen, entstehen in den Jahren 2025/2026 hochwertige Eigentumswohnungen, die nach dem neuesten Stand der Bautechnik und den aktuellen Bestimmungen der Energieeinsparverordnung (EnEV) errichtet werden.
Lage:
Das Grundstück befindet...
Ausstattung
Kurzbeschreibung:
Die Immobilie bietet eine moderne Ausstattung mit Fußbodenheizung, Dreifachverglasung und elektrisch betriebenen Aluminium-Rollläden. In den Bädern und WCs werden hochwertige Fliesen sowohl als Boden- als auch als Wandbelag verlegt. Die Balkone erhalten einen Belag aus Werksteinplatten, während das...
Preisinformation
1 Tiefgaragenstellplatz, Kaufpreis: 20.000,00 EUR
Weitere Informationen
Stichworte
Tiefgarage vorhanden, Anzahl der Schlafzimmer: 2, Anzahl der Badezimmer: 1, Anzahl Balkone: 1, Anzahl Terrassen: 1, 4 Etagen
Sonstiges/Wohnen: seniorengerechtes Wohnen
Anbieter der Immobilie

König Immobilien GmbH
Ziegenhainer Str. 13, 34576 Homberg
Online-ID: 2lbnp5j
Referenznummer: H 15557_WHG 05
Finde Angebote wie dieses
Hier geht es zu unserem Impressum, den Allgemeinen Geschäftsbedingungen, den Hinweisen zum Datenschutz und nutzungsbasierter Online-Werbung.