

Wild Projektentwicklung GmbH
Herr Josef Staller
083 ···
Nr. anzeigenPreise & Kosten
Provision für Käufer
Maklercourtage 2,0 % netto / 2,38 % brutto (inkl. 19% gesetzliche Mehrwertsteuer) vom Kaufpreis
Lage
Das Reihenmittelhaus befindet sich in einer super Wohnlage von München-Haar. Die Umgebung zeichnet sich durch eine ruhige, familienfreundliche Atmosphäre aus und bietet gleichzeitig eine hervorragende Anbindung an die Münchner Innenstadt. Mit der S-Bahn sowie mehreren Buslinien erreicht man die Stadt schnell und bequem, auch...
Das Haus
Kategorie
Reihenmittelhaus
Geschosse
2 Geschosse
Baujahr
1974
Derzeitige Nutzung
vermietet
Energie & Heizung
Warum sehe ich diese Anzeige? – Du siehst diese Anzeige basierend auf Ihrer Navigation auf unserer Website und den Suchkriterien, die du verwendet hast.
Energieausweistyp
Verbrauchsausweis
Gebäudetyp
Wohngebäude
Baujahr laut Energieausweis
2008
Wesentliche Energieträger
Erdgas
Gültigkeit
29.11.2020 bis 28.11.2030
Effizienzklasse
C
Endenergieverbrauch
88,70 kWh/(m²·a) - Warmwasser enthalten
Weitere Energiedaten
Energieträger
Gas
Heizungsart
Zentralheizung
Details
Objektbeschreibung
Dieses charmante Reihenmittelhaus in München-Haar überzeugt durch seine attraktive Lage, eine durchdachte Raumaufteilung und zahlreiche Ausstattungsdetails, die modernen Wohnkomfort garantieren. Mit einer Wohnfläche von ca. 115–120 m² bietet das Haus ausreichend Platz für Familien oder Paare, die großzügig und zugleich...
Weitere Informationen
sonstiges
Besichtigungen finden nur statt, wenn im Vorfeld eine Finanzierungsbestätigung (auch mit banküblichem Prüfungsvorbehalt) eingereicht wird.
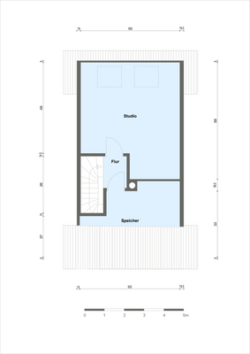
Die Grundrisse sind ca. Angaben und nicht maßstabsgetreu
Anbieter der Immobilie
Wild Projektentwicklung GmbH
Leutkircher Str. 20-24, 88450 Berkheim

Online-ID: 2lbqs5s
Finde Angebote wie dieses
Hier geht es zu unserem Impressum, den Allgemeinen Geschäftsbedingungen, den Hinweisen zum Datenschutz und nutzungsbasierter Online-Werbung.