
FOCUS Immobilienmakler GmbH
Herr Mario Schubert
004 ···
Nr. anzeigenPreise & Kosten
Kaution
3 Kaltmieten
Provision für Mieter
provisionsfrei
Warum sehe ich diese Anzeige? – Du siehst diese Anzeige basierend auf Ihrer Navigation auf unserer Website und den Suchkriterien, die du verwendet hast.
Lage
Das Wohn und Geschäftshaus befindet sich unmittelbar in der historischen Altstadt von Halle nur wenige Gehminuten vom Markt und der Universität Halle entfernt.
Durch die zentrale Lage ist das Objekt optimal an den öffentlichen Nahverkehr angeschlossen und erreichbar.
Büro-/Praxisfläche
Kategorie
Bürofläche
Baujahr
1995
Bezug
01.01.2026
Geschoss
2. Geschoss
Energie & Heizung
Warum sehe ich diese Anzeige? – Du siehst diese Anzeige basierend auf Ihrer Navigation auf unserer Website und den Suchkriterien, die du verwendet hast.
Wärme
Energieausweistyp
Verbrauchsausweis
Gebäudetyp
Nicht-Wohngebäude
Wesentliche Energieträger
GAS
Gültigkeit
bis 01.06.2032
Endenergieverbrauch (Wärme)
80,00 kWh/(m²·a)
Weitere Energiedaten
Energieträger
Gas
Heizungsart
Zentralheizung
Details
Objektbeschreibung
Die Gewerbefläche befinden sich in einem gepflegten Wohn- und Geschäftshauses in ruhiger und trotzdem zentraler Altstadtlage .
Ausstattung
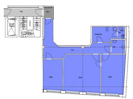
Interessante Bürofläche mit 3 großen und hellen Arbeitsräumen, 2 Sanitärflächen und einer separaten Teeküche.
Die Einheit befindet sich im 2.OBergeschoß und ist bequem über den Aufzug erreichbar.
Tiefgaragenstellplätze können (bei Verfügbarkeit) separat angemietet werden.
Angegebene Mietpreise verstehen...
Weitere Informationen
Sonstiges
Für ergänzende Informationen zum Objekt und ein persönliches Beratungsgespräch stehen wir Ihnen gern auch telefonisch zur Verfügung.
Sind Sie an weiteren Angeboten interessiert? Besuchen Sie uns auf doch unserer Homepage www.focus-makler.de.
Wir freuen uns auf Sie.
Stichworte
Tiefgarage...
Anbieter der Immobilie
FOCUS Immobilienmakler GmbH
Rabensteinplatz 1, 04103 Leipzig
Online-ID: 2lbwz5j
Referenznummer: 13251
Finde Angebote wie dieses
Hier geht es zu unserem Impressum, den Allgemeinen Geschäftsbedingungen, den Hinweisen zum Datenschutz und nutzungsbasierter Online-Werbung.