Version: 8.24.0Navigation überspringen
355.000 €
3 Zimmer  •  86,6 m²
Immowelt logo

Wohnung zum Kauf • als Kapitalanlage geeignet
355000 €
4.097 €/m²
3 Zimmer  •  86,6 m²

helle, großzügige 3 Zimmer Wohnung Aystetten mit großzügigem Balkon

Objektbeschreibung Energetisch neu saniertes Mehrfamilienhaus. Die Fassade (200 mm Mineralwolle) und das komplette Dachgeschoss wurde komplett neu aufgebaut. Das Dach wurde mit Titan-Zink (Rheinzink) neu erstellt. Das Carport wurde neu und modern erstellt. Die Gartenanlage wurde auch neu gestaltet.
Die Heizung wurde komplett erneuert.
Fassaden/Außenanlagen: Wärmedämmung, neue Fassade, gepflegte Außenanlagen.
Energieversorgung: Pelletheizung für effiziente Wärmeversorgung; Dreifachverglaste Fenster für hohen Wärmekomfort.
Innenausbau:
Schlaf-/Kinderzimmer sowie Wohn-Essbereich: Bodenbeläge modern, Vinyl-Designboden.
Küche:extra
Bad:
Badewanne und Dusche, Bad mit Fenster, moderne Fliesen.
Treppenhaus:
Granitboden, hochwertiges Geländer.
Elektrik/Technik: Komplett erneuerte Elektrik, zentrale Versorgung, Multimedia-Verkabelung.

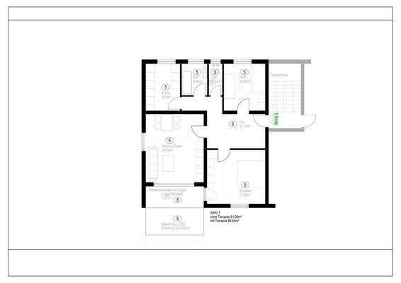
Wohneinheiten: 86,63 m² Wohnfläche, 3 Zimmer (Schlafzimmer + Kinderzimmer + Wohnzimmer), komfortabler Grundriss, zeitgemäße Ausstattung, bezugsfertig.
Erschließung: Alle Versorgungsleitungen vorhanden (Strom, Wasser, Abwasser).
Energieausweis: Modernisierte Heiztechnik mit verbessertem Energiewert; Energieausweis vorhanden. Raumaufteilung Schlafzimmer mit Zugang auf die Trasse
Kinderzimmer/ Büro,größzügig gescgnitten mit viel Licht
Badezimmer mit Dusche, Badewanne und Fenster
Flur, grosser Eingangsbereich
Küche, ist separat mit Türe und Fenster
Wohnzimmer mit Essecke

Merkmale

  • vermietet
  • 2. Geschoss
  • Kelleranteil
  • Carport, Außen-Stellplatz, Tiefgarage
  • Garten
  • Terrasse

Grundrisse

Grundrisse
1 / 1

Realisiere Dein Projekt

Bausubstanz und Energie

Der Anbieter hat keine Informationen zum Energieverbrauch bereit gestellt.
  • Baujahr2014
  • HaustypKfW 55
  • HeizungsartZentralheizung
  • EnergieträgerPellets
Immowelt logo

Preisdetails

Kaufpreis
355000 €
4.097 €/m²
Preis pro Stellplatz
12500 €
Hausgeld
230 €
Provision für Käufer
jeweils 3,57 % Brutto für den Verkäufer und dem Käufer
Geschätzte Gesamtkosten
387.198 €1
Kaufpreis
355.000 €
Notarkosten (1,5%)
5.325 €
Grunderwerbsteuer (3,5%)
12.425 €
Provision für Käufer (3,57%)
12.673 €
Grundbucheintrag (0,5%)
1.775 €
1Der angezeigte Wert ist eine automatisch berechnete Schätzung von immowelt.
2Bei den Angaben handelt es sich um ortsübliche Werte. Individuelle Kosten können abweichen.

Lage

address-icon
Aystetten (86482)
Der Anbieter hat die genaue Adresse nicht freigegeben
Attraktive Wohnlage in Aystetten mit guter Infrastruktur, Einkaufsmöglichkeiten und ÖPNV-Anbindung.

Weitere Informationen

Besichtigungstermine Gerne können Sie sich bei mir melden und einen Termin vereinbaren zur Besichtigung

Linda Hammerschmidt
l.hammerschmidt@mb-buck.de
0151/55570710 Stichworte Zustand: renoviert, saniert, gepflegt Serviceleistungen: Hausmeister

Weitere Services

Lust auf eine Besichtigung?
Eine Frage zur Immobilie?
Nachricht hinzufügen
Mit der Nutzung der oben angegebenen Telefonnummer oder durch Klicken auf „Kontaktieren“ akzeptierst Du die Allgemeinen Nutzungsbedingungen, denen Du jederzeit widersprechen kannst. Weitere Informationen zum Datenschutz

Über den Anbieter

Ganghoferstr.8, 86456 Gablingen
partner badge
Partnerschaft
Frau Linda  Hammerschmidt
Frau Linda HammerschmidtDein Kontakt
Online-ID: 2lbzn5f
Lemminge Homes GmbH
title
Lemminge Homes GmbH
Nachricht hinzufügen
Mit der Nutzung der oben angegebenen Telefonnummer oder durch Klicken auf „Kontaktieren“ akzeptierst Du die Allgemeinen Nutzungsbedingungen, denen Du jederzeit widersprechen kannst. Weitere Informationen zum Datenschutz
Wie zufrieden bist du mit dieser Seite (nicht mit der Immobilie selbst)?