

Markus Frey Immobilien
Frau Gisèle Tropmann
+49 ···
Nr. anzeigenPreise & Kosten
Kaution
1.990,00 €
Warum sehe ich diese Anzeige? – Du siehst diese Anzeige basierend auf Ihrer Navigation auf unserer Website und den Suchkriterien, die du verwendet hast.
Lage
Die Wohnung befindet sich in der Nähe des Stadtzentrum, nur ca. 5 Gehminuten vom Marktplatz entfernt. Aber auch den nahegelegenen Teuchelwald mit seinen vielen Wander- und Radwegen erreicht man in wenigen Minuten. Man kann alle Wege des täglichen Bedarfs bequem zu Fuß erledigen. Die Anbindung an öffentliche Verkehrsmittel ist...
Die Wohnung
Kategorie
Apartment
Wohnungslage
2. Geschoss
Bezug
01.01.2026
Wohnanlage
Energie & Heizung
Warum sehe ich diese Anzeige? – Du siehst diese Anzeige basierend auf Ihrer Navigation auf unserer Website und den Suchkriterien, die du verwendet hast.
Energieausweistyp
Verbrauchsausweis
Gebäudetyp
Wohngebäude
Baujahr laut Energieausweis
1994
Wesentliche Energieträger
Gas
Gültigkeit
06.03.2018 bis 06.03.2028
Effizienzklasse
D
Endenergieverbrauch
128,00 kWh/(m²·a)
Weitere Energiedaten
Energieträger
Gas
Heizungsart
Zentralheizung
Details
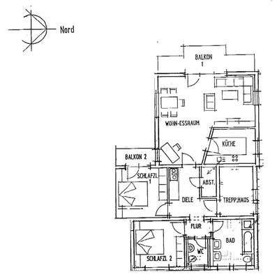
Objektbeschreibung
Die schöne und helle 3-Zimmer-Wohnung befindet sich im 1. Obergeschoss in einem sehr gepflegten Mehrfamilienhaus in idealer Lage von Freudenstadt. Das Haus wurde 1994 sehr hochwertig gebaut. Im Keller befindet sich für die Allgemeinheit ein Wasch- & Trockenraum. Zur Wohnung gehört ein großer, abgeschlossener Kellerraum...
Ausstattung
-ideale Lage
-zwei Balkone
-Badezimmer mit Badewanne, Dusche, 2 Waschbecken und WC
-Gästetoilette
-Einbauküche vorhanden
-Zentrumsnah
-helle Räume
-schöne Raumaufteilung
-Gas-Zentralheizung
-Glasfaseranschluss (vorbereitet)
-Kunststofffenster mit Isolierverglasung
-pflegeleichter...
Preisinformation
1 Stellplatz, Miete: 25,00 EUR
Weitere Informationen
Sonstiges
Unser Service für Sie als Vermieter: Wir bewerten gerne kostenfrei Ihre Immobilie zum aktuellen Mietwert, ermitteln eine angemessene Nebenkostenvorauszahlung, suchen für Sie einen solventen Mieter und stehen Ihnen über die reine Vermietung Ihrer Immobilie bis zur erfolgreichen Schlüsselübergabe zur Verfügung...
Anbieter der Immobilie
Markus Frey Immobilien
Turnhallestr. 38, 72250 Freudenstadt

Online-ID: 2lbzn5s
Referenznummer: 4566#CDkUN
Finde Angebote wie dieses
Hier geht es zu unserem Impressum, den Allgemeinen Geschäftsbedingungen, den Hinweisen zum Datenschutz und nutzungsbasierter Online-Werbung.