
Crozilla.com
Croatia Property Sales
+38 ···
Nr. anzeigenPreise & Kosten
Provision für Käufer
Bitte beachte, das Angebot kann bei Vertragsabschluss die Zahlung einer Provision beinhalten. Weitere Informationen erhältst Du vom Anbieter.
Wohnanlage
Details
Objektbeschreibung
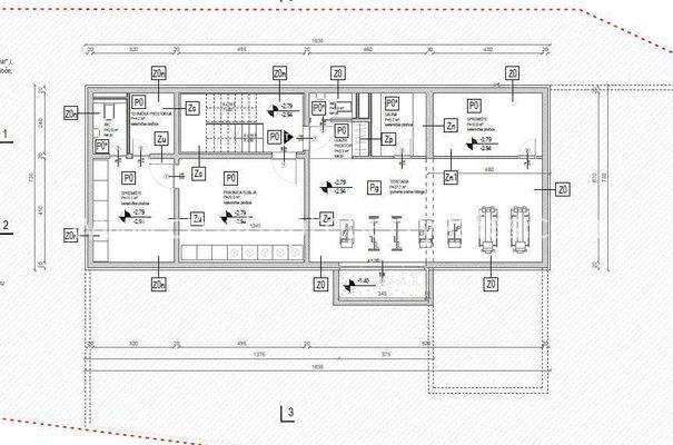
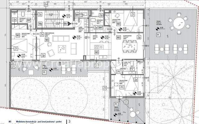
Neu im Angebot, Luxus -Apartments ab September 2023.Sie befinden sich in einer großartigen Lage, 60 m vom Meer entfernt.Das Hauptprojekt besteht aus einem Keller, einem Erdgeschoss und zwei Stockwerken.Der Keller enthält einen technischen Raum, einen Lagerung, eine Wäsche, eine Sauna und ein Fitnessstudio.Erdgeschoss -...
Weitere Informationen
Stichworte
Anzahl der Schlafzimmer: 3, Anzahl der Badezimmer: 3
Anbieter der Immobilie
Crozilla.com
Nova cesta 60, 10000 ZAGREB
Online-ID: 2lbzr5n
Referenznummer: 13721444_10
Finde Angebote wie dieses
Hier geht es zu unserem Impressum, den Allgemeinen Geschäftsbedingungen, den Hinweisen zum Datenschutz und nutzungsbasierter Online-Werbung.