
Decus Immobilien GmbH
Frau Roswitha McGehee
+43 ···
Nr. anzeigenPreise & Kosten
Provision für Käufer
Die Provision bezahlt der Abgeber.
Die Wohnung
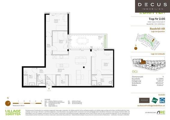
Wohnungslage
1. Geschoss
Bezug
voraussichtlich 2027
Wohnanlage
Energie & Heizung
Warum sehe ich diese Anzeige? – Du siehst diese Anzeige basierend auf Ihrer Navigation auf unserer Website und den Suchkriterien, die du verwendet hast.
Heizwärmebedarf (HWB)
33,00 kWh/(m²·a)
Gesamtenergieeffizienz (fGEE)
0,75
Weitere Energiedaten
Energieträger
Fernwärme, Solar
Heizungsart
Fußbodenheizung
Details
Objektbeschreibung
WOHNEN IM VILLAGE IM DRITTEN
Mit dem VILLAGE IM DRITTEN entsteht in Wien ein neues, lebendiges Stadtquartier mit rund 2.000 Wohnungen, dazu Büro- und Gewerbeflächen, Nahversorgung sowie Kinderbetreuungs- und Bildungseinrichtungen, welches das moderne Wohnen mit viel Grün, Gemeinschaft und nachhaltiger Energieversorgung...
Weitere Informationen
Stichworte
Nord-Ost-Balkon/Terrasse, Fahrradraum, Anzahl der Badezimmer: 1, Anzahl der separaten WCs: 1, Anzahl Balkone: 1, Balkon-Terrassen-Fläche: 15,58 m², Bundesland: Wien, 11 Etagen, Wohnungsnr.: 5
Dokumente
Anbieter der Immobilie
Decus Immobilien GmbH
Kärtner Straße 39/Annagasse 1, 1010 WIEN
Online-ID: 2lc6h5l
Referenznummer: OBGC202509091557553324b7ec35b91
Finde Angebote wie dieses
Günstige Immobilienfinanzierung einfach online berechnen
Persönliches Angebot berechnenWarum sehe ich diese Werbung? – Du siehst diese Werbung basierend auf Deiner Navigation auf unserer Website und der von Dir verwendeten Suchkriterien.
Diese Werbung wird bezahlt von durchblicker
Werbung melden
Hier geht es zu unserem Impressum, den Allgemeinen Geschäftsbedingungen, den Hinweisen zum Datenschutz und nutzungsbasierter Online-Werbung.