
Klinger Immobilien Gabriele Heil
Frau Gabriele Heil
089 ···
Nr. anzeigenPreise & Kosten
Provision für Käufer
3,57 % (inkl. MwSt.) verdient und fällig mit Beurkundung des notariellen Kaufvertrages .
Der Immobilienmakler hat einen provisionspflichten Maklervertrag mit dem Verkäufer in gleicher Höhe abgeschlossen.
Lage
Zentral gelegen. Zum Supermarkt EDEKA sind es 3 Minuten zu Fuß.
Zum Strand und Seepromenade sind es ca. 15 Minuten zu Fuß (siehe Fotos mit Ansichten).
Der Tegernsee liegt malerisch in den bayerischen Alpen, 726 m über dem Meeresspiegel. Von München sind es nur rund 52 km bis nach Bad Wiessee, der internationale...
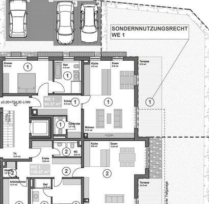
Die Wohnung
Wohnungslage
Erdgeschoss
Bezug
ab sofort / nach Absprache
Derzeitige Nutzung
frei
Wohnanlage
Energie & Heizung
Warum sehe ich diese Anzeige? – Du siehst diese Anzeige basierend auf Ihrer Navigation auf unserer Website und den Suchkriterien, die du verwendet hast.
Energieausweistyp
Verbrauchsausweis
Gebäudetyp
Wohngebäude
Baujahr laut Energieausweis
2014
Wesentliche Energieträger
Erdgas E, Strom-Mix
Gültigkeit
bis 06.07.2035
Effizienzklasse
B
Endenergieverbrauch
73,70 kWh/(m²·a) - Warmwasser enthalten
Weitere Energiedaten
Heizungsart
Fußbodenheizung
Details
Objektbeschreibung
Im Alleinauftrag starten wir den Verkauf dieser neuwertigen und sehr gepflegten EG-Wohnung mit Terrasse und Gartenanteil.
Exzellente Restaurants, gelebte Traditionen und eine Kulisse wie im Bilderbuch machen jeden Tag zum Erlebnis!
Sie lieben Berge ebenso wie Seen? In Bad Wiessee müssen Sie sich nicht...
Ausstattung
Besonderheiten der Wohnung:
• Helles Wohnzimmer mit gemütlichem Holzkamin, offener Küche und Essbereich.
• Moderne Einbauküche inklusive aller Elektrogeräte.
• Geräumiges Schlafzimmer mit Zugang zum Tageslichtbad mit Fenster, Badewanne, bodengleicher Dusche und Handtuchheizkörper.
• Separates Gäste-WC.
•...
Weitere Informationen
Sonstiges
Auch für Kapitalanleger bietet sich hier eine attraktive Möglichkeit – zur Vermietung auf Zeit oder dauerhaft.
Die Wohnung wurde seit 2014 vom Eigentümer lediglich wenige Monate genutzt und präsentiert sich in einem nahezu neuwertigen Zustand.
Ein Video zum Objekt können Sie hier...
Anbieter der Immobilie
Klinger Immobilien Gabriele Heil
Obere Mühlstr. 19, 81247 München
Online-ID: 2lceh5u
Finde Angebote wie dieses
Hier geht es zu unserem Impressum, den Allgemeinen Geschäftsbedingungen, den Hinweisen zum Datenschutz und nutzungsbasierter Online-Werbung.