

IMMOHU - Immobilienservice Mosel Rhein Eifel Hunsrueck
Herr Peter Lichtherte
+49 ···
Nr. anzeigenPreise & Kosten
Provision für Käufer
3,57 % inkl. MwSt. inkl. MwSt.
Lage
Kövenig ist ein kleiner, ruhiger Moselort ohne Durchgangsverkehr. Im Sommer gibt es eine Fähre nach Enkrich, wo man alle Dinge des täglichen Bedarfs bekommt und in 5 Minuten ist man mit der Bahn oder dem Auto in der Jugendstil-Stadt Traben Trarbach mit allen Einkaufsmöglichkeiten, Restaurants, Ärzten, Schulen, Kindergärten...
Das Haus
Kategorie
Reihenmittelhaus
Baujahr
1971
Energie & Heizung
Warum sehe ich diese Anzeige? – Du siehst diese Anzeige basierend auf Ihrer Navigation auf unserer Website und den Suchkriterien, die du verwendet hast.
Energieausweistyp
Bedarfsausweis
Gebäudetyp
Wohngebäude
Gültigkeit
bis 29.10.2029
Effizienzklasse
F
Endenergiebedarf
173,90 kWh/(m²·a)
Weitere Energiedaten
Haustyp
Massivhaus
Energieträger
Öl
Heizungsart
Zentralheizung
Details
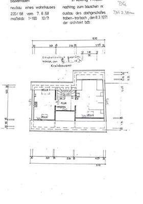
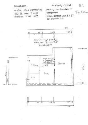
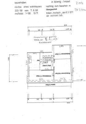
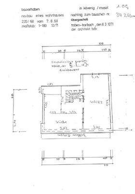
Objektbeschreibung
Direkt bezugsfertiges Einfamilienhaus in Kövenig, idyllisch auf einem Hang gelegen, mit spektakulärer Aussicht über die Mosel bis hinunter nach Enkirch. Die Renovierung wurde zeitgemäß umgesetzt: helle, offene Grundrisse, großzügige Fensterflächen sorgen für lichtdurchflutete Räume und eine freundliche Atmosphäre.
Die...
Ausstattung
In 2019 wurde dieses Objekt umfassend renoviert:
Die Elektrik wurde ab dem ersten Geschoss erneuert und wahrscheinlich auch die Wasserleitungen.
Gleiches gilt für Küche, Bäder, Innenputz und Bodenbeläge.
Außer im dritten Obergeschoss wurden 3-fach-verglaste Fenster eingebaut, die alle über Rollläden verfügen.
Preisinformation
3 Carportplätze
3 Stellplätze
3 Garagenstellplätze
Weitere Informationen
Sonstiges
Die Flächen- und Maßangaben sind Circa-Werte und beruhen auf den Angaben der Verkäufer. Die Preise verstehen sich zzgl. Käuferprovision von 3,57 % (inkl. MwSt.) vom beurkundeten Kaufpreis.
Fällig wird diese mit Abschluss des notariellen Kaufvertrages.
Stichworte
Garage vorhanden, Carport vorhanden...
Anbieter der Immobilie

Online-ID: 2lcfg58
Referenznummer: 25563
Finde Angebote wie dieses
Hier geht es zu unserem Impressum, den Allgemeinen Geschäftsbedingungen, den Hinweisen zum Datenschutz und nutzungsbasierter Online-Werbung.