
Bonava Deutschland GmbH
Team Ihr Beratungsteam der Bonava Deutschland GmbH
+49 ···
Nr. anzeigenPreise & Kosten
Provision für Käufer
provisionsfrei
Lage
20 km südlich von Berlin entsteht unser Wohnquartier. Vier Bahnhöfe gibt es in Zossen und seinen Ortsteilen. Zum Bahnhof Zossen radeln Sie 5 Minuten. Die Zugfahrt bis Berlin-Südkreuz dauert 40 Minuten, zur A10 sind es 11 km und die Gigafactory Tesla ist in 35 Autominuten erreichbar.
Die Wohnung
Wohnungslage
3. Geschoss
Bezug
01.11.2026
Wohnanlage
Energie & Heizung
Warum sehe ich diese Anzeige? – Du siehst diese Anzeige basierend auf Ihrer Navigation auf unserer Website und den Suchkriterien, die du verwendet hast.
Weitere Energiedaten
Energieträger
Pellets
Heizungsart
Fußbodenheizung
Details
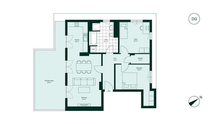
Objektbeschreibung
Diese helle Eigentumswohnung im Staffelgeschoss bietet Komfort und Wohlfühlatmosphäre.
Vom Eingangsbereich gelangen Sie direkt in das großzügige Wohnzimmer, welches durch bodentiefe Fenster viel Tageslicht bietet. Die offene Wohnküche lädt zum gemeinsamen Kochen und Verweilen ein. Vom offenen Wohnbereich gelangen Sie...
Ausstattung
- große Dachterrasse
- Tageslichtbad
- Badewanne und bodengleiche Dusche
- Fliesen und pflegeleichter Designboden
- bodentiefe Fenster
- Abstellraum
- Rollläden
- Keller
- Fußbodenheizung
- Gastherme und Holzpellets
- quartierseigener Kinderspielbereich
- Sitzbänke
- Fahrradstellplätze
Weitere Informationen
Sonstiges
bonava.de/schlosspark - https://www.bonava.de/immobilien/berliner-umland/zossen/quartier-am-alten-schlosspark/3
Stichworte
Anzahl der Schlafzimmer: 2, Anzahl der Badezimmer: 1, Anzahl Terrassen: 1, 3 Etagen
Anbieter der Immobilie
Online-ID: 2lcjv58
Referenznummer: 132862097#EXcPsm
Finde Angebote wie dieses
Hier geht es zu unserem Impressum, den Allgemeinen Geschäftsbedingungen, den Hinweisen zum Datenschutz und nutzungsbasierter Online-Werbung.