
Dahler & Company Wohnen München GmbH & Co. KG
DAHLER München
004 ···
Nr. anzeigenPreise & Kosten
Provision für Käufer
3,57 inkl. der gesetzlichen MwSt., bezogen auf den Kaufpreis inkl. MwSt.
Lage
Die Immobilie befindet sich in begehrter Lage im westlichen Münchner Stadtteil Pasing mit Anbindung und urbanem Flair. Die Lage kombiniert die Vorteile des städtischen Lebens mit der Nähe zu grünen Rückzugsorten und einer sehr guten Infrastruktur.
Verkehrsanbindung:
Die Verkehrsanbindung ist ausgezeichnet: Die...
Das Haus
Kategorie
Mehrfamilienhaus
Baujahr
1994
Energie & Heizung
Warum sehe ich diese Anzeige? – Du siehst diese Anzeige basierend auf Ihrer Navigation auf unserer Website und den Suchkriterien, die du verwendet hast.
Energieausweistyp
Verbrauchsausweis
Gebäudetyp
Wohngebäude
Baujahr laut Energieausweis
1994
Wesentliche Energieträger
ERDGAS_LEICHT
Gültigkeit
bis 30.04.2033
Effizienzklasse
D
Endenergieverbrauch
107,72 kWh/(m²·a)
Weitere Energiedaten
Energieträger
Gas
Heizungsart
Fußbodenheizung, Zentralheizung
Details
Objektbeschreibung
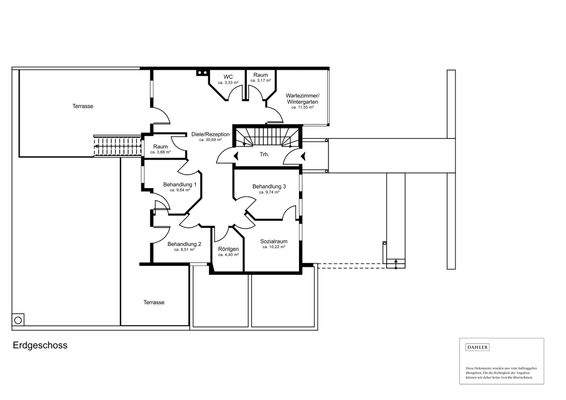
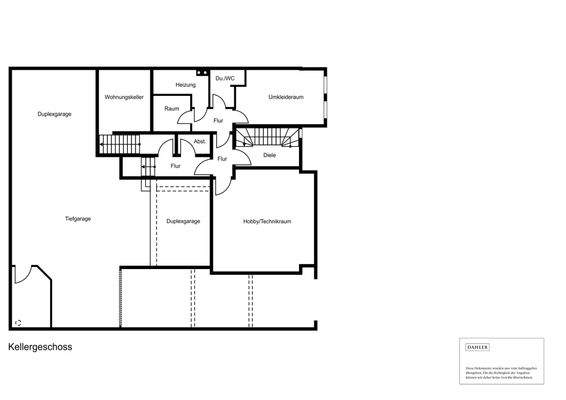
Das hier angebotene Reiheneckhaus bietet insgesamt fünf Einheiten: drei Wohneinheiten, eine Praxis im Erdgeschoss sowie ein Zahnlabor im Untergeschoss. Ausreichend Parkmöglichkeiten sind in der eigene Tiefgarage auf insgesamt 8 Duplexparkern vorhanden. Das Objekt bietet sich ideal auch als renditestarkes Wohn- und...
Ausstattung
Die verschiedenen Einheiten haben folgende Ausstattungsmerkmale:
Praxis im Erdgeschoss:
* Größe 92 m²
* bestehend aus Diele/Empfang, vier Behandlungszimmern, Röntgenraum, Sterilisation, WC, Mundhygiene
* Wartebereich im Wintergarten
Wohnung im Obergeschoss:
* Größe 92 m²
* 3,5-...
Weitere Informationen
Stichworte
Anzahl der Badezimmer: 4, Anzahl Balkone: 2, Anzahl Terrassen: 1, 3 Etagen, modernisiert
Anbieter der Immobilie
Online-ID: 2lcl95n
Referenznummer: DC-MUE-3900
Finde Angebote wie dieses
Hier geht es zu unserem Impressum, den Allgemeinen Geschäftsbedingungen, den Hinweisen zum Datenschutz und nutzungsbasierter Online-Werbung.