

Visio Planhaus Schweich GmbH
Herr Jörg Demmerath
065 ···
Nr. anzeigenPreise & Kosten
Provision für Käufer
provisionsfrei
Lage
Das Grundstück befindet sich in Ortslage.
Das Haus
Kategorie
Einfamilienhaus
Baujahr
2026
Bezug
2027
Energie & Heizung
Warum sehe ich diese Anzeige? – Du siehst diese Anzeige basierend auf Ihrer Navigation auf unserer Website und den Suchkriterien, die du verwendet hast.
Weitere Energiedaten
Haustyp
KfW 55, Massivhaus
Details
Ausstattung
Herzlich willkommen bei Visio Planhaus - Ihrem verlässlichen Partner für den Bau Ihres neuen individuellen Zuhauses.
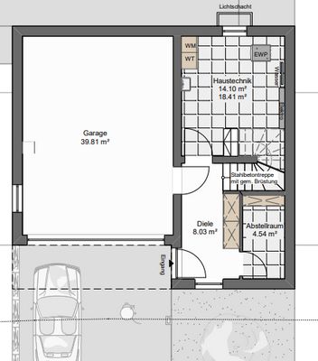
Diese angebotene VisioPlanHaus bietet auf ca. 210,00 m² Fläche, einem großzügigen Grundstück einen gehobenen Wohnkomfort auf drei Etagen. Mit insgesamt 6 Zimmern, davon 4 Schlafzimmern und ein...
Weitere Informationen
Baustoff Nr. 1: Stein & Beton
Eure ganz bewusste und clevere Entscheidung!
Stein/Beton ist seit je her und bis heute (im Jahr 2025) unverändert der beliebteste Baustoff von Baufamilien in ganz Deutschland und Europa.
Ob Ihr einen Wolkenkratzer oder ein neues Zuhause mit Pool für eure Familie bauen möchtet...
Anbieter der Immobilie

Online-ID: 2lcnq5z
Finde Angebote wie dieses
Hier geht es zu unserem Impressum, den Allgemeinen Geschäftsbedingungen, den Hinweisen zum Datenschutz und nutzungsbasierter Online-Werbung.