
Drenkhahn Immobilien GmbH
Herr Kay Seifert, staatl. gepr. Betriebsw.
+49 ···
Nr. anzeigenPreise & Kosten
zzgl. Nebenkosten
Provision für Mieter
3,57 Bruttowarmmieten inkl. 19% gesetzl. MwSt..
Der Makler-Vertrag mit unserem Unternehmen entsteht durch schriftliche Vereinbarung oder durch die Inanspruchnahme unserer Maklertätigkeit. Weitere Informationen siehe Provisionshinweis.
Warum sehe ich diese Anzeige? – Du siehst diese Anzeige basierend auf Ihrer Navigation auf unserer Website und den Suchkriterien, die du verwendet hast.
Lage
Die angebotene Immobilie liegt in einem Gewerbegebiet in der Gemeinde Westerrönfeld wenige Kilometer südlich der Kreisstadt Rendsburg im Zentrum von Schleswig-Holstein. Der Kanaltunnel Rendsburg (unter Nord-Ostsee-Kanal) ist nur wenige Fahrminuten entfernt und die Stadt Rendsburg ist in 10 Minuten zu erreichen.
Sehr...
Die Ladenfläche
Energie & Heizung
Warum sehe ich diese Anzeige? – Du siehst diese Anzeige basierend auf Ihrer Navigation auf unserer Website und den Suchkriterien, die du verwendet hast.
Weitere Energiedaten
Heizungsart
Zentralheizung
Details
Objektbeschreibung
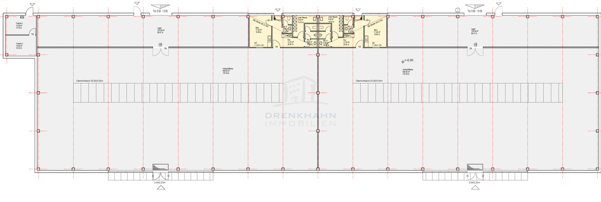
Bei der hier geplanten Neubau-Immobilie handelt es sich um einen eingeschossigen Zweckbau mit insgesamt ca. 2.156,09 m² frei verfügbare Nutzfläche. Aktuell ist die Immobilie in der Mitte geteilt geplant, sodass sich je Seite ca. 1.078,05 m² Nutzfläche ergeben. Eine kleinere Teilung ist nach Absprache ebenfalls...
Ausstattung
- ausreichend Stellplätze vor dem Gebäude
- Personalraum
- Personal-WCs
- Nahversorgungszentrum mit breitem Einzelhandelsangebot
- Werbemöglichkeiten am Objekt
- Doppelflügeleingangstür
- Anlieferung ganztägig rückwärtig mit LKW (40t) möglich
- großzügige Schaufensterfrontlänge (individuell mehr...
Preisinformation
30 Stellplätze, Miete je: 25,00 EUR
Weitere Informationen
Provisionshinweis
3,57 Bruttowarmmieten inkl. 19% gesetzl. MwSt..
Der Makler-Vertrag mit unserem Unternehmen entsteht durch schriftliche Vereinbarung oder durch die Inanspruchnahme unserer Maklertätigkeit. Die Vertragsbasis bildet das Objekt-Exposé. Die Mieterprovision ist bei Vertragsabschluss verdient und fällig. Die...
Anbieter der Immobilie
Online-ID: 2lcp25p
Referenznummer: 131869327
Finde Angebote wie dieses
Hier geht es zu unserem Impressum, den Allgemeinen Geschäftsbedingungen, den Hinweisen zum Datenschutz und nutzungsbasierter Online-Werbung.