

E + V Hamburg Immobilien GmbH
Team Engel & Völkers Hamburg Projekte
+49 ···
Nr. anzeigenPreise & Kosten
zzgl. Nebenkosten
Warum sehe ich diese Anzeige? – Du siehst diese Anzeige basierend auf Ihrer Navigation auf unserer Website und den Suchkriterien, die du verwendet hast.
Lage
Das Projekt 'The Lyte' liegt in der HafenCity - einem der modernsten und spannendsten Stadtteile Hamburgs. Die HafenCity vereint auf einzigartige Weise moderne Bürogebäude, luxuriöse Wohnprojekte sowie ein vielfältiges Angebot an Einkaufsmöglichkeiten und Gastronomie. Im südlichen Teil des Überseequartiers entsteht ein...
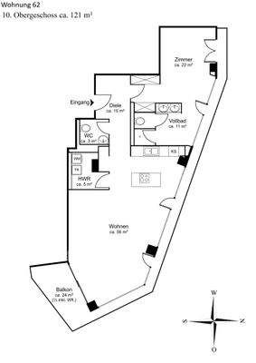
Die Wohnung
Wohnungslage
10. Geschoss
Wohnanlage
Energie & Heizung
Warum sehe ich diese Anzeige? – Du siehst diese Anzeige basierend auf Ihrer Navigation auf unserer Website und den Suchkriterien, die du verwendet hast.
Energieausweistyp
Bedarfsausweis
Gebäudetyp
Wohngebäude
Baujahr laut Energieausweis
2024
Gültigkeit
seit 30.09.2020
Effizienzklasse
B
Endenergiebedarf
66,40 kWh/(m²·a)
Weitere Energiedaten
Energieträger
Fernwärme
Heizungsart
Fußbodenheizung
Details
Objektbeschreibung
Diese außergewöhnliche 2-Zimmer-Wohnung beeindruckt durch ihre klare Architektur, großzügige Raumaufteilung und ihr helles, offenes Wohnkonzept. Auf rund 121 m² Wohnfläche vereinen sich moderner Wohnkomfort und exklusive Materialien zu einem harmonischen Gesamtbild. Das Herzstück der Wohnung bildet der weitläufige Wohn- und...
Ausstattung
Einbauschränke, Einbauküche, Hafenblick, Wasserblick
Preisinformation
Nettokaltmiete: 4.342,00 EUR
Weitere Informationen
Stichworte
Nord-Ost-Balkon/Terrasse, Anzahl der Schlafzimmer: 1, Anzahl der Badezimmer: 1, Anzahl Balkone: 1
Anbieter der Immobilie
E + V Hamburg Immobilien GmbH
Stadthausbrücke 5, 20355 Hamburg

Online-ID: 2lcr25y
Referenznummer: I-04749H-W-04749H
Finde Angebote wie dieses
Hier geht es zu unserem Impressum, den Allgemeinen Geschäftsbedingungen, den Hinweisen zum Datenschutz und nutzungsbasierter Online-Werbung.