
Realbau GmbH
Frau Eva Maria Kremsmair
+43 ···
Nr. anzeigenPreise & Kosten
Provision für Käufer
Bitte beachte, das Angebot kann bei Vertragsabschluss die Zahlung einer Provision beinhalten. Weitere Informationen erhältst Du vom Anbieter.
Die Wohnung
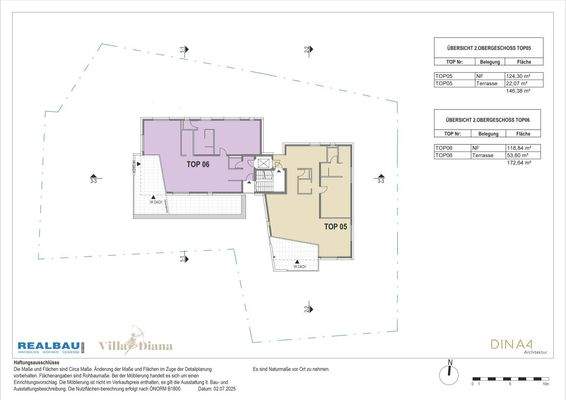
Wohnungslage
2. Geschoss (Dachgeschoss)
Wohnanlage
Energie & Heizung
Warum sehe ich diese Anzeige? – Du siehst diese Anzeige basierend auf Ihrer Navigation auf unserer Website und den Suchkriterien, die du verwendet hast.
Heizwärmebedarf (HWB)
41,00 kWh/(m²·a)
Gesamtenergieeffizienz (fGEE)
0,71
Weitere Energiedaten
Heizungsart
Fußbodenheizung, Luft-/Wasser-Wärmepumpe
Details
Objektbeschreibung
Design und Komfort - Premium-Wohnen für Sie
VILLA DIANA in Mils: exklusives Wohnprojekt mit nur sechs barrierefreien Wohnungen in großartiger Ruhelage nahe dem Dorfkern, mit Südwest-Ausrichtung, hochwertiger Ausstattung, viel Privatsphäre und zwei Garagenplätzen pro Einheit. Die VILLA DIANA vereint die...
Preisinformation
2 Garagenstellplätze
Weitere Informationen
Stichworte
Tiefgarage vorhanden, Süd-Balkon/Terrasse, Fahrradraum, Anzahl der Badezimmer: 1, Anzahl der separaten WCs: 2, Anzahl Terrassen: 1, Balkon-Terrassen-Fläche: 22,07 m², Kellerfläche: 9,50 m², Bundesland: Tirol, 4 Etagen, Wohnungsnr.: Top 05
Sonstiges/Wohnen: seniorengerechtes Wohnen
Dokumente
Anbieter der Immobilie
Realbau GmbH
Brockenweg 2, 6060 Hall in Tirol
Online-ID: 2lct35f
Referenznummer: OBGC20250710153449084bac8040382
Finde Angebote wie dieses
Günstige Immobilienfinanzierung einfach online berechnen
Persönliches Angebot berechnenWarum sehe ich diese Werbung? – Du siehst diese Werbung basierend auf Deiner Navigation auf unserer Website und der von Dir verwendeten Suchkriterien.
Diese Werbung wird bezahlt von durchblicker
Werbung melden
Hier geht es zu unserem Impressum, den Allgemeinen Geschäftsbedingungen, den Hinweisen zum Datenschutz und nutzungsbasierter Online-Werbung.