Be Part of Berlin Vermittlungs GmbH

Herr Christopher Morys

CHARMANTE GEWERBEFLÄCHE IN PRENZLAUER BERG | PROVISIONSFREI |

€ 5.242,11
Preis/m²
47,50 m²
Verkaufsfläche ca.
k.A.
Teilbare Fläche
1
Zimmer

Der Anbieter dieses Objekts hat gegenüber der AVIV Germany GmbH als Betreiber dieses Online-Marktplatzes erklärt, nicht als Unternehmer im Sinne des § 1 KSchG zu handeln. Die im Verbraucherschutzrecht der Union verankerten Verbraucherrechte (insbesondere Informationspflichten und Rücktritts- bzw. Widerrufsrechte) finden auf den Vertrag zwischen dem Anbieter des Objekts und Ihnen (dem Interessenten) keine Anwendung.

Provisionsfrei
Gewerblicher Anbieter

Der Anbieter dieses Objekts hat gegenüber der AVIV Germany GmbH als Betreiber dieses Online-Marktplatzes erklärt, als Unternehmer im Sinne des § 1 KSchG zu handeln.

AdresseZionskirchstraße 62
10119 Berlin 
(Prenzlauer Berg)
Auf Karte ansehen

Preise & Kosten

Preis/m² € 5.242,11 Kaufpreis € 249.000 Hausgeld € 352

Provision für Käufer

provisionsfrei

Lage

IN DER NÄHE VOM KOLLWITZKIEZ

Die Vielseitigkeit von Mitte zieht Jedermann in seinen Bann. Der ehemalige Stadtkern ziert sich mit viel Geschichte, prachtvollen Altbauten und vielen grünen Parks zum Entspannen.

Auch die Schwedter Straße ist ein attraktiver Hotspot in der Nähe vom Kollwitzkiez. Schmale Straßen...

Mehr anzeigen

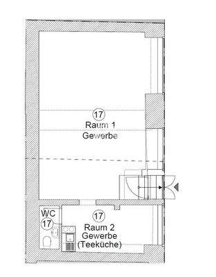
Die Ladenfläche

Kategorie

Verkaufsfläche

Baujahr

1890

Bezug

sofort

Erdgeschoss

  • Böden: Fliesenboden
  • Zustand: gepflegt

Energie & Heizung

Wärme

0 100 200 300 400 500 600 700 800 900 1000 +

Energieausweistyp

Verbrauchsausweis

Gebäudetyp

Nicht-Wohngebäude

Baujahr laut Energieausweis

1890

Wesentliche Energieträger

GAS

Gültigkeit

bis 25.03.2034

Endenergieverbrauch (Wärme)

168,00 kWh/(m²·a)

Details

Objektbeschreibung

ATTRAKTIVER ALTBAU IN MITTE

Dieser Altbau stammt aus dem Jahre 1890 und verfügt über rund 18 Einheiten. Er besteht aus einem Vorderhaus und einem Hinterhaus. Die gesamte Immobilie ist unterkellert und verfügt einen Innenhof mit Fahrradabstellmöglichkeiten.

Das Gebäude befindet sich im Ensemble-Gebiet.

Ausstattung

Dieses Gewerbeobjekt verfügt über folgende Ausstattungsmerkmale:

* großzügige Schaufensterfront
* helle und großzügige Räume
* praktisch geschnitten
* attraktive Lage

Das Hausgeld beträgt monatlich 352,00 €.

Weitere Informationen

Sonstiges
Bei Erwerb der Immobilie fällt keine zusätzliche Provision für den Käufer an!

Dieses Angebot ist freibleibend, sämtliche Angaben dieses Angebots basieren auf Angaben des Eigentümers. Eine Haftung für Richtigkeit und Vollständigkeit kann daher nicht übernommen werden.

Wir freuen uns von Ihnen zu...

Mehr anzeigen

Anbieter der Immobilie

Partner

Be Part of Berlin Vermittlungs GmbH

im Durchschnitt  4,90  Sterne
(bei 14 Bewertungen)

Kurfürstendamm 177, 10707 Berlin

Geschäftszeiten
user

Herr Christopher Morys

Dein Ansprechpartner

Anbieter-Website Anbieter-Profil Anbieter-Impressum

Online-ID: 2lcu65c

Referenznummer: SHI004_00017.L.01

Finde Angebote wie dieses

imageimageimage

Hier geht es zu unserem Impressum, den Allgemeinen Geschäftsbedingungen, den Hinweisen zum Datenschutz und nutzungsbasierter Online-Werbung.