
Sparkasse Schwelm-Sprockhövel
Herr Paul Timmerbeil
023 ···
Nr. anzeigenPreise & Kosten
Provision für Käufer
3,57 % inkl. MwSt.
Die Immobilie
Zu diesem Angebot wurden vom Anbieter keine weiteren Daten hinterlegt. Für weitere Informationen bitte den Anbieter kontaktieren.
Nach Informationen fragenDetails
Objektbeschreibung
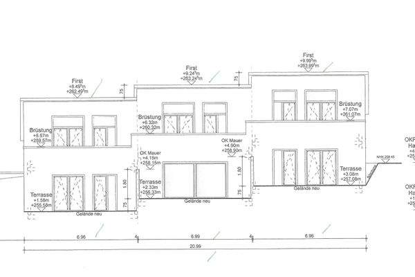
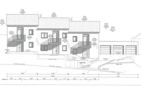
*** Stadtnahe Rarität: Grundstück mit Baugenehmigung für 3 Reihenhäuser in Schwelms begehrtester Lage ***
Dieses exklusive Baugrundstück in Schwelm bietet Ihnen eine einzigartige Möglichkeit, in einer der begehrtesten Wohnlagen der Stadt ein hochwertiges Wohnprojekt zu realisieren. Mit einer Fläche von ca. 1.051 m² ist...
Weitere Informationen
Sonstiges
VERBRAUCHERINFO
1. Maklerleistung ist der Nachweis der Gelegenheit zum Abschluss eines Vertrages bzw. Vermittlung eines Vertrages über eine Immobilie gegen die Courtagezahlungspflicht des Kunden
2. Unternehmer,Anschrift,Beschwerdeadressat
LBSi NordWest, Himmelreichallee 40, 48149 Münster...
Anbieter der Immobilie
Online-ID: 2lcvl5t
Referenznummer: 4545747
Finde Angebote wie dieses
Hier geht es zu unserem Impressum, den Allgemeinen Geschäftsbedingungen, den Hinweisen zum Datenschutz und nutzungsbasierter Online-Werbung.