
OTTO Immobilien
Herr Wolfgang von Poellnitz
004 ···
Nr. anzeigenPreise & Kosten
Provision für Mieter
provisionsfrei
Warum sehe ich diese Anzeige? – Du siehst diese Anzeige basierend auf Ihrer Navigation auf unserer Website und den Suchkriterien, die du verwendet hast.
Lage
- M1 Hegyeshalom / Grenze Nikelsdorf nach Budapest
- direkte Auffahrt auf die M1 an der Anschlusstelle Mosonmagyarovar / Landstraße 86
- Sichtbarkeit von der M1 aus ist gegeben
Die Industriefläche
Baujahr
2026
Bezug
Nach Vereinbarung
Energie & Heizung
Warum sehe ich diese Anzeige? – Du siehst diese Anzeige basierend auf Ihrer Navigation auf unserer Website und den Suchkriterien, die du verwendet hast.
Weitere Energiedaten
Heizungsart
Luft-/Wasser-Wärmepumpe
Details
Objektbeschreibung
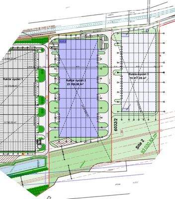
Auf einer Grundstücksfläche von rund 15 ha entstehen aktuell in drei Bauphasen rund 68'000 m² Light-Industrial- / Logistikflächen am Standort Mosonmagyarovar im Westen von Ungarn, 10 Fahrminuten von der österreichischen Grenze entfernt.
Dieser Standort wird nach modernsten ESG-Gesichtspunkten entworfen (BREEAM...
Ausstattung
HALLEN:
- Stützweitenraster: 12 x 24 m und 18 x 24 m im ersten Raster nahe der Ladetore
- Hallenhöhe 10 m
- Betonsockelhöhe 30 cm umlaufend ab Oberkante Hallenboden
Bodenplatte:
- Oberflächenebenheit: DIN-Norm 18202, Tabelle 3, Zeile 3
- Flügelgeglättet mit Hartkorneinstreuung
- Abriebfest
-...
Weitere Informationen
Stichworte
Lagerfläche: 39.804,00 m², Nutzfläche: 39.804,00 m², Gesamtfläche: 66.461,00 m², Hallenhöhe: 10,00 m
Anbieter der Immobilie
OTTO Immobilien
Riemergasse 8, 1010 WIEN
Online-ID: 2lcvz5p
Referenznummer: IVG-I-12855
Finde Angebote wie dieses
Hier geht es zu unserem Impressum, den Allgemeinen Geschäftsbedingungen, den Hinweisen zum Datenschutz und nutzungsbasierter Online-Werbung.