




Wohnung zur Miete360 €3 Zimmer • 55 m² • 3. Geschoss
360 €
3 Zimmer • 55 m² • 3. Geschoss
Neue Wohnung gesucht?
Merkmale
- Bezug: sofort
- 3. Geschoss
- Kelleranteil
- Balkon
- Badewanne
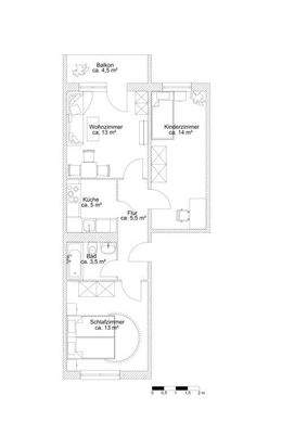
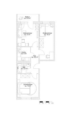
Grundrisse
Grundrisse
1 / 4
Realisiere Dein Projekt
Bausubstanz und Energie
Energieausweis
C
- Baujahr1989
- HeizungsartZentralheizung
- EnergieträgerGas
Mietkosten
Warmmiete
510 €
Kaltmiete
6,55 €/m²
360 €
Nebenkosten
80 €
Heizkosten
70 €
Kaution
keine Angabe
Weitere Preisinformationen
Nettokaltmiete: 360,00 EUR
Lage

Röpersdorfer Straße 23, Prenzlau (17291)
Weitere Informationen
Weitere Services
Lust auf eine Besichtigung?
Eine Frage zur Immobilie?
Ăśber den Anbieter
Wohnbau GmbH PrenzlauMaklerbĂĽro
Friedrichstr. 41, 17291 Prenzlau
Partnerschaft

Team VermietungsexpertenDein Kontakt
Online-ID: 2lcw85z
Referenznummer: 1/509/3/27
Wie zufrieden bist du mit dieser Seite (nicht mit der Immobilie selbst)?




