
Weisser Immobilien
Herr Jonathan Weisser
091 ···
Nr. anzeigenPreise & Kosten
Provision für Käufer
3,57 % inkl. gesetzlicher MwSt. vom Kaufpreis
Lage
Die Wohnung liegt in der Sophienstraße, unweit der Erlanger Innenstadt und des Klinikums. Einkaufsmöglichkeiten, Ärzte und Apotheken befinden sich in der näheren Umgebung und sind auch fußläufig erreichbar. Die Innenstadt von Erlangen mit zahlreichen Geschäften, Restaurants und Cafés ist in wenigen Minuten mit dem Bus oder...
Die Wohnung
Wohnungslage
3. Geschoss
Derzeitige Nutzung
vermietet
Wohnanlage
Energie & Heizung
Warum sehe ich diese Anzeige? – Du siehst diese Anzeige basierend auf Ihrer Navigation auf unserer Website und den Suchkriterien, die du verwendet hast.
Energieausweistyp
Bedarfsausweis
Gebäudetyp
Wohngebäude
Wesentliche Energieträger
Fernwärme
Gültigkeit
04.01.2019 bis 04.01.2029
Effizienzklasse
B
Endenergiebedarf
58,20 kWh/(m²·a)
Weitere Energiedaten
Energieträger
Fernwärme
Details
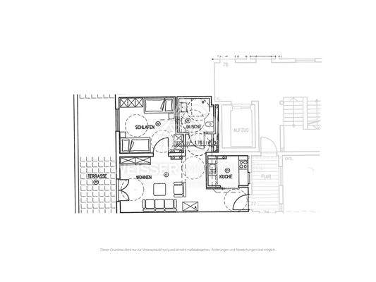
Objektbeschreibung
Die hier angebotene Seniorenwohnung befindet sich im 3. Obergeschoss des Seniorenheims Diakonie Sophienstraße in Erlangen. Der Zugang erfolgt barrierefrei über zwei Aufzüge oder das Treppenhaus, wobei das Gebäude über mehrere Eingänge verfügt.
Die Wohnung ist praktisch und komfortabel geschnitten: Vom Flur gelangen Sie...
Ausstattung
- Barrierefreier Zugang über zwei Aufzüge und Treppenhaus
- Einbauküche
- Großzügiges Wohnzimmer mit Balkon/Dachterrasse
- Barrierefreies Badezimmer mit Waschmaschinenanschluss
- Fliesen in Küche und Bad, PVC-Boden in Wohn- und Schlafräumen
- Duplex-Tiefgaragenstellplatz (im Kaufpreis enthalten, derzeit extern...
Preisinformation
1 Duplex-Stellplatz
Weitere Informationen
Sonstiges
Alle Angaben im Exposè wurden uns vom Eigentümer übermittelt. Für die Richtigkeit wird daher keine Haftung übernommen.
Stichworte
Duplex-Stellplatz vorhanden, Anzahl der Schlafzimmer: 1, Anzahl der Badezimmer: 1, Anzahl Balkone: 1, Bundesland: Bayern
Anbieter der Immobilie
Online-ID: 2lcyy5q
Referenznummer: V2025/05
Finde Angebote wie dieses
Hier geht es zu unserem Impressum, den Allgemeinen Geschäftsbedingungen, den Hinweisen zum Datenschutz und nutzungsbasierter Online-Werbung.