

Stubenvoll Immobilien
Herr Ferdinand Stubenvoll
+43 ···
Nr. anzeigenPreise & Kosten
Kaution
13.000,00 €
Provision für Mieter
Gemäß Erstauftraggeberprinzip bezahlt der Abgeber die Provision.
Warum sehe ich diese Anzeige? – Du siehst diese Anzeige basierend auf Ihrer Navigation auf unserer Website und den Suchkriterien, die du verwendet hast.
Lage
Grün-/Ruhelage
Die Wohnung
Bezug
sofort
Wohnanlage
Energie & Heizung
Warum sehe ich diese Anzeige? – Du siehst diese Anzeige basierend auf Ihrer Navigation auf unserer Website und den Suchkriterien, die du verwendet hast.
Heizwärmebedarf (HWB)
33,89 kWh/(m²·a)
Weitere Energiedaten
Energieträger
Gas
Heizungsart
Fußbodenheizung, Zentralheizung
Details
Objektbeschreibung
Kurzbeschreibung
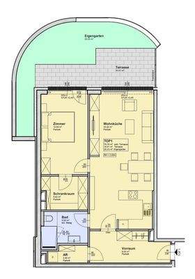
"Wohntraum" - Neubau Gartenwohnung - Bezug Herbst 2022
Objekt
"Wohntraum" - Neubau Gartenwohnung Top 1 - Erstbezug
Insgesamt 13 Top´s von 46 m² bis 177 m² mit Terrassen od. Balkon od. Garten -
71 m² Wfl + 15 m² Terrasse + 20m² Garten:
Großes Wohnzimmer mit offener Küche und...
Weitere Informationen
Stichworte
Tiefgarage vorhanden, Fahrradraum, Anzahl der Badezimmer: 1, Anzahl der separaten WCs: 1, Anzahl Terrassen: 1, Balkon-Terrassen-Fläche: 15,00 m², Gartenfläche: 20,00 m², Kellerfläche: 2,00 m², Bundesland: Wien, Wohnungsnr.: 1
Anbieter der Immobilie
Stubenvoll Immobilien
Utendorfgasse, 4/14, Wien Wien

Online-ID: 2ld265f
Referenznummer: OBGC2025081315333671045d19ece1e
Finde Angebote wie dieses
Hier geht es zu unserem Impressum, den Allgemeinen Geschäftsbedingungen, den Hinweisen zum Datenschutz und nutzungsbasierter Online-Werbung.