
Immoteam7 ITS GmbH
Herr Kevin Bachmann
004 ···
Nr. anzeigenPreise & Kosten
Provision für Käufer
Bitte beachte, das Angebot kann bei Vertragsabschluss die Zahlung einer Provision beinhalten. Weitere Informationen erhältst Du vom Anbieter.
Die Industriefläche
Baujahr
2003
Bezug
nach Absprache
Energie & Heizung
Warum sehe ich diese Anzeige? – Du siehst diese Anzeige basierend auf Ihrer Navigation auf unserer Website und den Suchkriterien, die du verwendet hast.
Heizwärmebedarf (HWB)
79,00 kWh/(m²·a)
Weitere Energiedaten
Energieträger
Gas
Heizungsart
Fußbodenheizung
Details
Objektbeschreibung
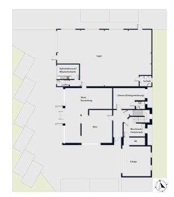
Büro, Halle, Wohnung - die perfekte Verschmelzung von Arbeit und Wohnkomfort
- 112 m² Büro | 233 m² Halle/Werkstatt'/Lager | 215 m² Wohnung | 37 m² Garage
- Hauptgebäude in hochwertiger Massivbauweise und Halle in Metallbau
- ruhige und doch zentrale Lage im Vorderland - perfekt für Arbeiten und Wohnen
-...
Preisinformation
13 Stellplätze
Weitere Informationen
Stichworte
Stellplatz vorhanden, Fahrradraum, Wohnfläche: 215,00 m², Nutzfläche: 600,00 m², Anzahl Balkone: 2, Anzahl Terrassen: 1, Kellerfläche: 8,00 m², Bundesland: Vorarlberg, Lage im Gewerbegebiet
Sonstiges/Wohnen: Einliegerwohnung
Dokumente
Anbieter der Immobilie
Immoteam7 ITS GmbH
Mozartstraße 1, 6850 DORNBIRN
Online-ID: 2ld2u5e
Referenznummer: 2289
Finde Angebote wie dieses
Hier geht es zu unserem Impressum, den Allgemeinen Geschäftsbedingungen, den Hinweisen zum Datenschutz und nutzungsbasierter Online-Werbung.