
Immobilienbüro Eichwald OHG
Herr Dieter Eichwald
038 ···
Nr. anzeigenPreise & Kosten
Kaution
2.500,00
Warum sehe ich diese Anzeige? – Du siehst diese Anzeige basierend auf Ihrer Navigation auf unserer Website und den Suchkriterien, die du verwendet hast.
Lage
Die Wohnung befindet sich in einer sehr guten, ruhigen zentralen Wohnlage in der Hafenstadt Sassnitz. Nur wenige Schritte von der Wohnung sind alle Einkaufsmöglichkeiten des täglichen Bedarfes, wie z.B. Apotheken und Arztpraxen vorhanden. Zum Hafen gelangt man zu Fuß in ca. 2 Minuten.
Die Wohnung
Bezug
sofort
Wohnanlage
Energie & Heizung
Warum sehe ich diese Anzeige? – Du siehst diese Anzeige basierend auf Ihrer Navigation auf unserer Website und den Suchkriterien, die du verwendet hast.
Energieausweistyp
Verbrauchsausweis
Gebäudetyp
Wohngebäude
Gültigkeit
bis 26.06.2033
Endenergieverbrauch
105,00 kWh/(m²·a)
Weitere Energiedaten
Heizungsart
Zentralheizung
Details
Objektbeschreibung
Kurzbeschreibung
Seestraße
Objekt
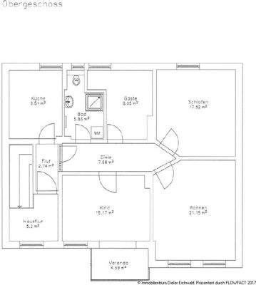
In der beliebten Hafenstadt Sassnitz in zentraler Lage und nur ca. 300 m vom Stadthafen entfernt, können wir Ihnen ab sofort eine komplett sanierte, sehr helle Mietwohnung im Obergeschoss eines Mehrfamilienhauses anbieten. Sie wohnen großzügig auf ca. 94 m² und haben ein...
Ausstattung
komplett saniert ca. 94 m² Wohnfläche, 3,5 Zimmer, Wohnzimmer mit Veranda, Küche, Bad mit Dusche, die Fussböden wurden mit Vinyl belegt, Fliesen im Bad
Preisinformation
1 Garagenstellplatz, Miete: 50,00 EUR
Nettokaltmiete: 1.128,00 EUR
Weitere Informationen
Sonstiges
Heizungsart: Gas-Heizung
Befeuerung/Energieträger: Keine Angabe
Energieausweistyp: Verbrauchsausweis
Energiekennwert: 105 kWh/(m²*a)
Stichworte
Stellplatz vorhanden, Anzahl der Schlafzimmer: 3, Anzahl der Badezimmer: 1, Anzahl Terrassen: 1
Anbieter der Immobilie
Online-ID: 2ld4f59
Referenznummer: 4913
Finde Angebote wie dieses
Hier geht es zu unserem Impressum, den Allgemeinen Geschäftsbedingungen, den Hinweisen zum Datenschutz und nutzungsbasierter Online-Werbung.