
Raiffeisen Immobilien Vermittlung GmbH
Herr Walter Haider
+43 ···
Nr. anzeigenPreise & Kosten
Provision für Käufer
3% des Kaufpreises plus 20% USt.
Lage
Das Reihenhaus befindet sich im ruhigen, naturnahen Pusztawohnpark in Breitenbrunn, nur wenige Minuten vom Neusiedler See entfernt - ein idyllischer Rückzugsort.Die Region ist bekannt für Ihre Weinberge, Radwege, den Neusiedler See und ein vielfältiges Freizeitangebot wie Segeln und Wandern - perfekt für Erholungssuchende und...
Das Haus
Kategorie
Reihenmittelhaus
Baujahr
1978
Bezug
Nach Vereinbarung
Energie & Heizung
Warum sehe ich diese Anzeige? – Du siehst diese Anzeige basierend auf Ihrer Navigation auf unserer Website und den Suchkriterien, die du verwendet hast.
Heizwärmebedarf (HWB)
105,50 kWh/(m²·a)
Gesamtenergieeffizienz (fGEE)
3,33
Weitere Energiedaten
Energieträger
Elektro
Heizungsart
Fußbodenheizung
Details
Objektbeschreibung
Doppelte Chance mit viel Potential - großzügiges Wohnen nahe dem Neusiedler See!
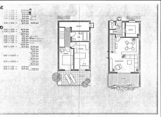
Zum Verkauf stehen zwei direkt nebeneinanderliegende Reihenhäuser mit Seeblick im Pusztawohnpark Breitenbrunn, die durch eine Verbindungstür miteinander verbunden sind.Jedes Haus verfügt über ca. 77,43m² Wohnfläche, ist baugleich aufgebaut...
Preisinformation
2 Garagenstellplätze
Weitere Informationen
Stichworte
Anzahl der Badezimmer: 2, Anzahl der separaten WCs: 4, Anzahl Balkone: 2, Anzahl Terrassen: 2, Kellerfläche: 20,82 m², Bundesland: Burgenland
Sonstiges/Wohnen: Dachboden
Anbieter der Immobilie
Online-ID: 2ld6d5e
Referenznummer: 0001010592
Finde Angebote wie dieses
Günstige Immobilienfinanzierung einfach online berechnen
Persönliches Angebot berechnenWarum sehe ich diese Werbung? – Du siehst diese Werbung basierend auf Deiner Navigation auf unserer Website und der von Dir verwendeten Suchkriterien.
Diese Werbung wird bezahlt von durchblicker
Werbung melden
Hier geht es zu unserem Impressum, den Allgemeinen Geschäftsbedingungen, den Hinweisen zum Datenschutz und nutzungsbasierter Online-Werbung.