

CUBION Immobilien AG
Herr Stewart Darman
+49 ···
Nr. anzeigenPreise & Kosten
Provision für Mieter
provisionsfrei
Warum sehe ich diese Anzeige? – Du siehst diese Anzeige basierend auf Ihrer Navigation auf unserer Website und den Suchkriterien, die du verwendet hast.
Lage
Fußweg zu öffentl. Verkehrsmitteln: 9 Min.
Fahrzeit zum nächsten Hauptbahnhof: 10 Min.
Fahrzeit zur BAB: 3 Min.
Fahrzeit zum nächsten Flughafen: 15 Min.
Büro-/Praxisfläche
Bezug
nach Vereinbarung
Details
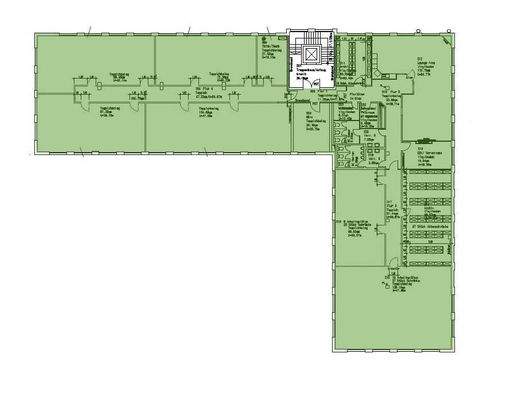
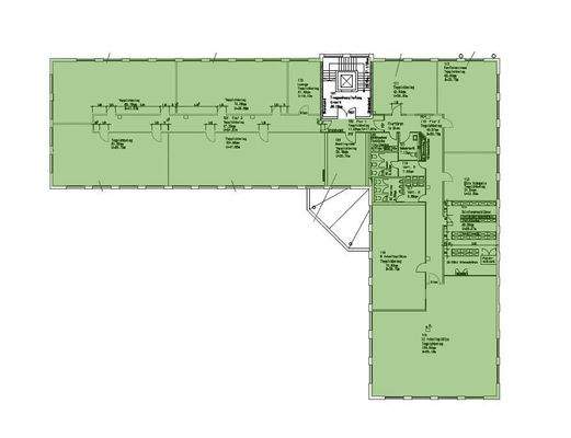
Objektbeschreibung
Das Gebäude bietet flexibel gestaltbare und klimatisierte Flächen im Großenbaum. Zahlreiche Stellplätze stehen direkt am Gebäude zur Verfügung.
Derzeit stehen folgende Flächen zur Verfügung:
Erdgeschoss: 657 m²
1. Obergeschoss: 1.062 m²
2. Obergeschoss: 1.062 m²
Gesamtfläche ca.: 2.781 m²
Ausstattung
Bodenbelag: Teppichboden
EDV-Verkabelung: CAT 7 (vom Vormieter)
Kabelführung: Bodentanks
Kühlung: Klima-Split-Geräte
Sonnenschutz: Raffstoren außen (manuell)
Küche: Einbauküche
Beleuchtung: Rasterdecken-Einbauleuchten
Aufzug: Personenaufzug
Heizung: Gaszentralheizung
Barrierearm: Ja
Deckenhöhe...
Weitere Informationen
Sonstiges
GEG 2020: Ein Energieausweis liegt zurzeit nicht vor.
Dieses Angebot ist provisionsfrei für den Mieter!
Alle Informationen in diesem Exposé beruhen auf Angaben, die wir vom Vermieter erhalten haben. Für Richtigkeit und Vollständigkeit übernehmen wir keine Gewähr. Zwischenvermietung vorbehalten...
Anbieter der Immobilie

CUBION Immobilien AG
Akazienallee 65, 45478 Mülheim

Online-ID: 2ld6z5p
Referenznummer: 3076
Finde Angebote wie dieses
Hier geht es zu unserem Impressum, den Allgemeinen Geschäftsbedingungen, den Hinweisen zum Datenschutz und nutzungsbasierter Online-Werbung.