
KaWe – Bau GmbH
Herr Tobias Weber
065 ···
Nr. anzeigenPreise & Kosten
Provision für Käufer
provisionsfrei
Lage
Die Bebauung unseres Massivholz-Mehrfamilienhaus mit jeweils 5 Wohneinheiten liegt ruhig und grün direkt am angrenzenden Naherholungsgebiet in der Irscher Straße 51 A, 54439 Saarburg. Ideal für junge Familien: Kindergärten, Schulen, Ärzte und Einkaufsmöglichkeiten sind bequem erreichbar – beste Voraussetzungen für ein...
Die Wohnung
Kategorie
Terrassenwohnung
Wohnungslage
Erdgeschoss
Bezug
01.01.2027
Wohnanlage
Energie & Heizung
Warum sehe ich diese Anzeige? – Du siehst diese Anzeige basierend auf Ihrer Navigation auf unserer Website und den Suchkriterien, die du verwendet hast.
Energieausweistyp
Bedarfsausweis
Gebäudetyp
Wohngebäude
Baujahr laut Energieausweis
2026
Wesentliche Energieträger
Strom-Mix
Gültigkeit
08.06.2025 bis 08.06.2035
Effizienzklasse
A+
Endenergiebedarf
6,50 kWh/(m²·a)
Weitere Energiedaten
Energieträger
Solar
Heizungsart
Fußbodenheizung, Luft-/Wasser-Wärmepumpe, Zentralheizung
Details
Objektbeschreibung
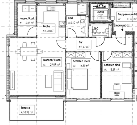
Die Wohnung Nr. 2 befindet sich in einem innovativen Massivholz-Mehrfamilienhaus in der Irscher Straße 51 A, 54439 Saarburg. Mit einer Wohnfläche von 89,72 m² bietet die Wohnung eine durchdachte Raumaufteilung und modernen Wohnkomfort. Die nachhaltige Massivholzbauweise sorgt für ein gesundes Raumklima, ist besonders...
Ausstattung
- Hochwertige Einbauküche inklusive
- Kontrollierbare Be- und Entlüftungsanlage für optimales Raumklima
- Ausgestattetes Badezimmer mit modernen Sanitärobjekten
- Terrasse für zusätzlichen Außenbereich
- Zusätzlicher Abstellraum innerhalb des Gebäudes
- 2 Stellplätze je. 12.000,00€ zukaufbar
-...
Weitere Informationen
Vereinbaren Sie mit uns einen Termin in unserem Verkaufsbüro, dort erhalten Sie eine ausführliche Beratung, sowie eine detaillierte Baubeschreibung.
Unsere Kontaktdaten:
KaWe – Bau GmbH
Am Saarufer 5
54439 Saarburg
info@kawe-bau.de
Tel 06581–994174
Mo.- Do 8.00 – 17.00
Fr. 8.00 – 13.00 oder nach...
Dokumente
Anbieter der Immobilie
KaWe – Bau GmbH
Am Saarufer 5, 54439 Saarburg
Online-ID: 2ld7t5d
Finde Angebote wie dieses
Hier geht es zu unserem Impressum, den Allgemeinen Geschäftsbedingungen, den Hinweisen zum Datenschutz und nutzungsbasierter Online-Werbung.