

Vorteil Immobilien Stephan Manke
Herr Stephan Manke
050 ···
Nr. anzeigenPreise & Kosten
Provision für Käufer
Bitte beachte, das Angebot kann bei Vertragsabschluss die Zahlung einer Provision beinhalten. Weitere Informationen erhältst Du vom Anbieter.
Lage
Es handelt sich besonders für Familien um eine äußerst günstige Lage. Das Grundstück ist ruhig gelegen. Der Ortskern von Luthe ist nur ca. 400 Meter entfernt. Grundschule Sportstätten, Kindertagesstätten und auch das Luther Natur-Erlebnisbad, welches über Wunstorfs Grenzen hinaus bekannt ist, befinden sich in unmittelbarer...
Das Haus
Kategorie
Einfamilienhaus
Baujahr
1968
Bezug
Sofort
Energie & Heizung
Warum sehe ich diese Anzeige? – Du siehst diese Anzeige basierend auf Ihrer Navigation auf unserer Website und den Suchkriterien, die du verwendet hast.
Weitere Energiedaten
Energieträger
Gas
Heizungsart
Zentralheizung
Details
Objektbeschreibung
Dieses Okal Fertighaus bietet mit seinen 7 Zimmern viel Wohnraum. Auch eine größere Familie kommt hier bequem unter. Die Lage innerhalb von Luthe und die Gestaltung des Grundstücks suchen ihres Gleichen. Die gesamte Immobilie wurde im Laufe der Jahre sehr gut gepflegt und auch modernisiert. Sie befindet sich deshalb in einem...
Ausstattung
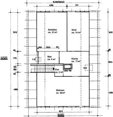
Aufteilung:
EG:ca. 127 m²; 4 Zi, Küche, Bad, WC, Flur, Wf,
Wintergarten
DG:ca. 81 m²; 3 Zi, Küche, Bad, Flur
Keller: ca. 116 m², 6 Räume, Flur
Flächenangaben:
Für diese Immobilie existiert keine qualifizierte Wohn-/Nutzflächenberechnung. Alle Flächenangaben wurden sorgfältig geschätzt. Die Genauigkeit...
Preisinformation
2 Garagenstellplätze
Weitere Informationen
Sonstiges
Wünschen Sie weitere Informationen oder möchten Sie sich dieses interessante Objekt gerne einmal anschauen? Dann nehmen Sie Kontakt mit uns auf.
Der Erwerb ist für den Käufer provisionsfrei.
Es gelten unsere AGB.
Die Informationen im Exposé beziehen sich auf die Auskünfte des Eigentümers bzw...
Anbieter der Immobilie
Vorteil Immobilien Stephan Manke
Bertolt-Brecht-Str. 38, 31515 Wunstorf

Online-ID: 2ld885q
Referenznummer: VI403_1
Finde Angebote wie dieses
Hier geht es zu unserem Impressum, den Allgemeinen Geschäftsbedingungen, den Hinweisen zum Datenschutz und nutzungsbasierter Online-Werbung.