
HM KAISER & Partner Immobilien KG
Frau Margaretha Kaiser
004 ···
Nr. anzeigenPreise & Kosten
Provision für Käufer
3% des Kaufpreises zzgl. 20% USt.
Lage
Diese attraktive Wohnung befindet sich in 1140 Wien, einem lebendigen Stadtteil, der sowohl Ruhe als auch Urbanität bietet. Alle wichtigen Einrichtungen sind fußläufig erreichbar: Ärzte, Apotheken und Kliniken sorgen für Ihre Gesundheit, während Schulen und Kindergärten die perfekte Umgebung für Familien schaffen...
Die Wohnung
Wohnungslage
1. Geschoss
Wohnanlage
Energie & Heizung
Warum sehe ich diese Anzeige? – Du siehst diese Anzeige basierend auf Ihrer Navigation auf unserer Website und den Suchkriterien, die du verwendet hast.
Heizwärmebedarf (HWB)
86,00 kWh/(m²·a)
Gesamtenergieeffizienz (fGEE)
1,91
Weitere Energiedaten
Heizungsart
Zentralheizung
Details
Objektbeschreibung
Penzinger Straße 36-38
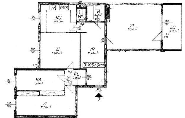
Diese großzügige Wohnung liegt im 1. Lifstock einer sanierten und sehr gepflegten Wohnhausanlage mit 3 Baukörpern. Sie besticht durch die ruhige Lage und den Grünblick. Mit einem Kaufpreis von 498.000,00 € bietet diese renovierungsbedürftige Immobilie auf 105,5 m² Wohnfläche plus großer...
Weitere Informationen
Stichworte
Süd-Balkon/Terrasse, Anzahl der Badezimmer: 1, Anzahl der separaten WCs: 1, Anzahl Loggias: 1, Balkon-Terrassen-Fläche: 9,25 m², Kellerfläche: 4,11 m², Bundesland: Wien
Dokumente
Anbieter der Immobilie

HM KAISER & Partner Immobilien KG
Edelsinnstraße 3, 1120 WIEN
Online-ID: 2ldct59
Referenznummer: OBGC202508231950397099c0524e990
Finde Angebote wie dieses
Günstige Immobilienfinanzierung einfach online berechnen
Persönliches Angebot berechnenWarum sehe ich diese Werbung? – Du siehst diese Werbung basierend auf Deiner Navigation auf unserer Website und der von Dir verwendeten Suchkriterien.
Diese Werbung wird bezahlt von durchblicker
Werbung melden
Hier geht es zu unserem Impressum, den Allgemeinen Geschäftsbedingungen, den Hinweisen zum Datenschutz und nutzungsbasierter Online-Werbung.