

ImmobilienDuo H. Finck und T. Lamb Gbr
Herr Hauke Finck
043 ···
Nr. anzeigenPreise & Kosten
Provision für Käufer
Bitte beachte, das Angebot kann bei Vertragsabschluss die Zahlung einer Provision beinhalten. Weitere Informationen erhältst Du vom Anbieter.
Lage
Die Immobilie befinde sich im Hamburger Stadtteil Jenfeld. Während Jenfeld in seinem östlichen Teil an der Grenze zu Schleswig-Holstein von grauen Plattenbauten dominiert wird, zeigt sich der westliche Teil als grünes Quartier. Jenfeld ist jedoch weit davon entfernt, ein geteilter Stadtteil zu sein, denn engagierte Bürger...
Das Haus
Kategorie
Doppelhaushälfte
Baujahr
1965
Energie & Heizung
Warum sehe ich diese Anzeige? – Du siehst diese Anzeige basierend auf Ihrer Navigation auf unserer Website und den Suchkriterien, die du verwendet hast.
Energieausweistyp
Verbrauchsausweis
Gebäudetyp
Wohngebäude
Baujahr laut Energieausweis
1965
Wesentliche Energieträger
GAS
Gültigkeit
bis 27.02.2035
Effizienzklasse
F
Endenergieverbrauch
188,50 kWh/(m²·a)
Weitere Energiedaten
Haustyp
Massivhaus
Energieträger
Gas
Heizungsart
Zentralheizung
Details
Objektbeschreibung
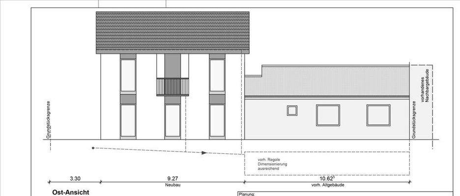
Die Doppelhaushälfte wurde 1965 in massiver Bauweise erstellt und befindet sich in einer sehr ruhigen Einfamilienhaussiedlung im Hamburger Stadtteil Jenfeld. Es besteht eine Anbaumöglichkeit an das vorhandene Doppelhaus, welche im Jahr 2020 positiv entschieden worden ist. Die Genehmigung müsste neu beantragt werden. Die...
Ausstattung
- Baugenehmigung aus 2020 für einen Anbau vorhanden ( abgelaufen)
Neubeantragung nötig
- Teilung des Grundstücks und Neubebauung möglich
- ebenerdig
- gut geschnittenes Grundstück
- Gäste-WC
- Wintergarten
- Garage
Weitere Informationen
Sonstiges
Die Immobilie wird ohne Käuferprovision angeboten.
Alle vorstehenden Daten beruhen auf Angaben des Verkäufers. Bei aller Sorgfalt können wir keine Gewähr für die Richtigkeit der Angebotsdaten übernehmen.
Der Zwischenverkauf bleibt vorbehalten.
Bitte geben Sie uns Ihre vollständige Postanschrift, E-Mail...
Anbieter der Immobilie
ImmobilienDuo H. Finck und T. Lamb Gbr
Bahnhofstraße 52, 24217 Schönberg

Online-ID: 2lddv5r
Referenznummer: 838
Finde Angebote wie dieses
Hier geht es zu unserem Impressum, den Allgemeinen Geschäftsbedingungen, den Hinweisen zum Datenschutz und nutzungsbasierter Online-Werbung.