

VR-Bank in Mittelbaden eG Geschäftsstelle Haueneberstein
Frau Annette Rast
004 ···
Nr. anzeigenPreise & Kosten
Provision für Käufer
3,57 % inkl. MwSt.
Lage
Das angebotene Mehrfamilienhaus befindet sich in der Nähe des Stadtzentrums in 76437 Rastatt, und genießt eine hervorragende Lage in der Stadt. Rastatt, bekannt für seine barocke Architektur und seine lebendige Kulturszene, bietet eine ideale Symbiose aus urbanem Leben und naturnahem Wohnen.
Die Lage ist eine ruhige...
Das Haus
Kategorie
Mehrfamilienhaus
Baujahr
1910
Energie & Heizung
Warum sehe ich diese Anzeige? – Du siehst diese Anzeige basierend auf Ihrer Navigation auf unserer Website und den Suchkriterien, die du verwendet hast.
Energieausweistyp
Verbrauchsausweis
Gebäudetyp
Wohngebäude
Baujahr laut Energieausweis
1910
Wesentliche Energieträger
GAS
Gültigkeit
bis 23.06.2034
Effizienzklasse
F
Endenergieverbrauch
199,10 kWh/(m²·a)
Weitere Energiedaten
Energieträger
Gas
Heizungsart
Etagenheizung
Details
Objektbeschreibung
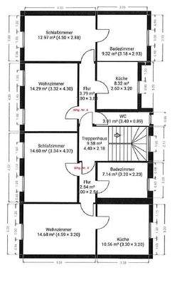
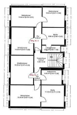
Entdecken Sie dieses historische Mehrfamilienhaus im Herzen von Rastatt! Der ca. im Jahr 1910 erbaute Altbau erstreckt sich über drei Etagen und bietet eine großzügige Wohnfläche von ca. 413 m².
Davon befinden sich im Vorderhaus 5 Wohneinheiten und im Hinterhaus eine Wohneinheit:
EG rechts: 5 Zi. Whg mit ca. 116 m²...
Ausstattung
- Gastherme
- Kunststofffenster
- Laminat-, Fliesen- und Teppichböden
- teilweise elektrische Außenrollläden
Weitere Informationen
Stichworte
Anzahl der Badezimmer: 6, Anzahl der separaten WCs: 1, 3 Etagen
Anbieter der Immobilie
VR-Bank in Mittelbaden eG Geschäftsstelle Haueneberstein
Hügelsheimer Str. 6, 76473 Iffezheim

Online-ID: 2ldh552
Referenznummer: 1006
Finde Angebote wie dieses
Hier geht es zu unserem Impressum, den Allgemeinen Geschäftsbedingungen, den Hinweisen zum Datenschutz und nutzungsbasierter Online-Werbung.