
Scherf Profi Immobilien Service GmbH
Herr Norbert Scherf
065 ···
Nr. anzeigenPreise & Kosten
Provision für Käufer
provisionsfrei
Lage
Schweich - Mittelzentrum mit guter Infrastruktur und optimaler Verkehrsanbindung in alle Richtungen. Das Objekt entsteht in Ortsrandlage von Schweich-Issel . Alle Einrichtungen des täglichen Bedarfs sind auf kurzen Wegen erreichbar. Ebenso ist eine gute Verkehrsanbindung in alle Richtungen gegeben
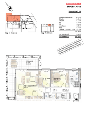
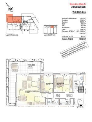
Die Wohnung
Bezug
kurzfristig beziehbar
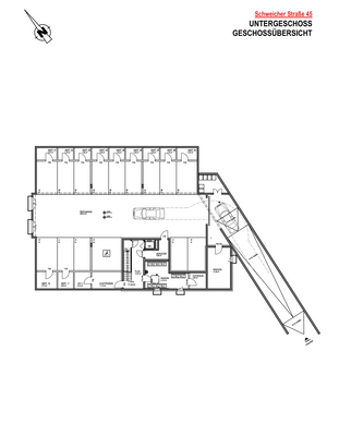
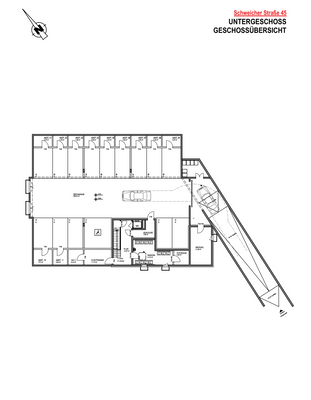
Wohnanlage
Energie & Heizung
Warum sehe ich diese Anzeige? – Du siehst diese Anzeige basierend auf Ihrer Navigation auf unserer Website und den Suchkriterien, die du verwendet hast.
Energieausweistyp
Bedarfsausweis
Gebäudetyp
Wohngebäude
Baujahr laut Energieausweis
2022
Wesentliche Energieträger
Luft/Wasser-Wärmepumpe
Gültigkeit
16.09.2021 bis 16.09.2031
Effizienzklasse
A+
Endenergiebedarf
14,00 kWh/(m²·a)
Weitere Energiedaten
Haustyp
KfW 40
Heizungsart
Fußbodenheizung, Luft-/Wasser-Wärmepumpe
Details
Objektbeschreibung
Schöne helle kurzfristig beziehbare Erdgeschoßwohnung mit großer Terrasse im Energiesparhauses in Schweich-Issel
Modernes altengerechtes Wohnen in Schweich-Issel. In attraktiver Lage von Schweich-Issel entstehen neue Eigentumswohnungen im Energiestandard KFW 40 in altersgerechter Ausführung mit moderner Technik Lift...
Ausstattung
Modernes altengerechtes Wohnen in Schweich-Issel. In attraktiver Lage von Schweich-Issel entstehen neue Eigentumswohnungen im Energiestandard KFW 40 in altersgerechter Ausführung mit moderner Technik Lift Tiefgarage und guter Ausstattung.
Es sind eine moderne Luftwärmepumpe, Fußbodenheizung, elektrische Rollläden, Lift,...
Preisinformation
1 Tiefgaragenstellplatz, Kaufpreis: 23.000,00 EUR
Weitere Informationen
Sonstiges
Der Energieausweis liegt vor.
Dieser wird dem Interessenten vor dem Besichtigungstermin mit dem Exposé zur Verfügung gestellt.
Vereinbaren Sie einen Besichtigungstermin ! In Zusammenarbeit mit einem Finanzierungsvermittler sind wir Ihnen gerne bei der Gestaltung Ihrer Finanzierung behilflich. Auf...
Anbieter der Immobilie
Online-ID: 2ldq95h
Referenznummer: ETNBSI503A
Finde Angebote wie dieses
Hier geht es zu unserem Impressum, den Allgemeinen Geschäftsbedingungen, den Hinweisen zum Datenschutz und nutzungsbasierter Online-Werbung.