

Grossmann & Berger GmbH
Frau Marcela Wachholz
+49 ···
Nr. anzeigenPreise & Kosten
Provision für Käufer
3,57 % inkl. MwSt.
Lage
Kröppelshagen ist eine kleine Gemeinde im östlichen Speckgürtel der Freien und Hansestadt Hamburg, unmittelbar am Sachsenwald gelegen mit vielen Wander- und Reitwegen. Ein Kindergarten befindet sich im Ort, eine Grundschule in Escheburg ist nur wenige Kilometer entfernt. Weiterführende Schulen sind im benachbarten Wentorf und...
Das Haus
Kategorie
Einfamilienhaus
Baujahr
1969
Bezug
nach Vereinbarung
Energie & Heizung
Warum sehe ich diese Anzeige? – Du siehst diese Anzeige basierend auf Ihrer Navigation auf unserer Website und den Suchkriterien, die du verwendet hast.
Energieausweistyp
Bedarfsausweis
Gebäudetyp
Wohngebäude
Baujahr laut Energieausweis
1996
Wesentliche Energieträger
OEL
Gültigkeit
bis 05.05.2034
Effizienzklasse
H
Endenergiebedarf
267,24 kWh/(m²·a)
Weitere Energiedaten
Energieträger
Öl
Details
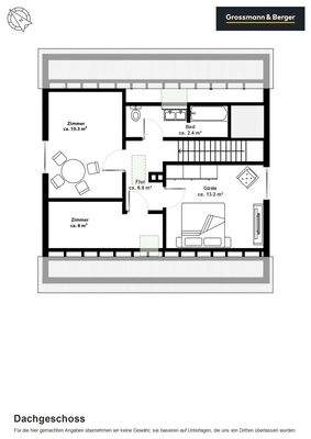
Objektbeschreibung
Dieses gemütliche Einfamilienhaus wurde mit einem Vollkeller in einer familienfreundlichen Lage in Kröppelshagen gebaut. Ende der Siebzigerjahre wurde das Haus gedämmt und mit weiß glasierten Riemchen versehen, sodass eine ansprechende Optik entstand. Das Erdgeschoss empfängt Sie mit einem Windfang und einem Gäste-WC. Der...
Ausstattung
In Teilen wurde das Haus renoviert und laufend instand gehalten. So wurde das Badezimmer im Erdgeschoss erneuert und mit weißen Sanitärobjekten sowie hellen Wandfliesen mit einem Fries ausgestattet. Die Küche stammt ebenfalls nicht mehr aus dem Baujahr, sie ist mit einer hellen Einbauzeile in Landhausoptik ausgestattet und...
Preisinformation
1 Garagenstellplatz
Weitere Informationen
Stichworte
Anzahl der Schlafzimmer: 4, Anzahl der Badezimmer: 2, Anzahl der separaten WCs: 1, Anzahl Terrassen: 1, Distanz zum Kindergarten: 0.34, Distanz zur Grundschule: 2.63, Distanz zur nächsten Einkaufsmöglichkeit: 4.32, Distanz zum Gymnasium: 5.15, Distanz zum Hauptbahnhof: 3.97, Distanz zum Bus: 0.15, Distanz zur...
Anbieter der Immobilie

Online-ID: 2ldr45x
Referenznummer: WB 2522
Finde Angebote wie dieses
Hier geht es zu unserem Impressum, den Allgemeinen Geschäftsbedingungen, den Hinweisen zum Datenschutz und nutzungsbasierter Online-Werbung.