
Böchzelt Immobilien Immobilienverwaltung Immobilienmakler GmbH
Milchberger
004 ···
Nr. anzeigenPreise & Kosten
Provision für Käufer
3% des Kaufpreises zzgl. 20% USt.
Lage
Das erst vor wenigen Jahren sanierte Laufhaus liegt in der Gemeinde Söding - St. Johann im Ortsteil Köppling. Söding - Sankt Johann weist knapp 4.300 Einwohner auf und liegt im Bezirk Voitsberg in der Steiermark. Die Liegenschaft liegt direkt an der B70 mit durchschnittlich 20.000 Fahrzeugen pro Tag. Damit liegt das Objekt an...
Das Renditeobjekt
Kategorie
Bürogebäude
Baujahr
1950
Bezug
sofort
Energie & Heizung
Warum sehe ich diese Anzeige? – Du siehst diese Anzeige basierend auf Ihrer Navigation auf unserer Website und den Suchkriterien, die du verwendet hast.
Heizwärmebedarf (HWB)
85,90 kWh/(m²·a)
Gesamtenergieeffizienz (fGEE)
1,19
Weitere Energiedaten
Energieträger
Öl
Heizungsart
Zentralheizung
Details
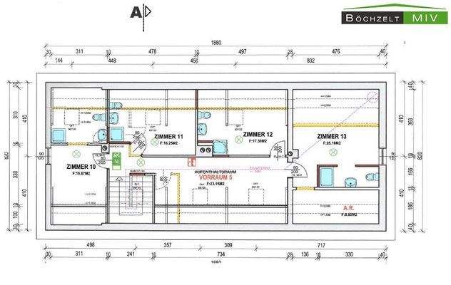
Objektbeschreibung
Zum Verkauf gelangt ein erst vor knapp 2 Jahren saniertes Laufhaus, direkt an der B70 mit enormen Laufkundschaftspotential. Das Objekt verfügt über ein Kellergeschoss, Erdgeschoss, 1. Obergeschoss, sowie einem Dachgeschoss. In den Obergeschossen befinden sich neben einem Aufenthaltsraum, WC-Anlagen, Abstellräume und Vorräume...
Preisinformation
Kaufpreis versteht sich exkl. USt. Überrechnung der USt. ohne effektiven Zahlungsfluss ist möglich.
Weitere Informationen
Stichworte
Stellplatz vorhanden, Garage vorhanden, Süd-Balkon/Terrasse, Nutzfläche: 523,00 m², Anzahl der Badezimmer: 13, Anzahl der separaten WCs: 15, Anzahl Balkone: 1, Anzahl Terrassen: 1, Balkon-Terrassen-Fläche: 64,28 m², Kellerfläche: 181,91 m², Bundesland: Steiermark, 4 Etagen, modernisiert: 2020
Sonstiges...
Anbieter der Immobilie
Böchzelt Immobilien Immobilienverwaltung Immobilienmakler GmbH
Schmittstr 17, 8720 Knittelfeld
Online-ID: 2ldrq5l
Referenznummer: OBGC20231106063649822299777b67b
Finde Angebote wie dieses
Hier geht es zu unserem Impressum, den Allgemeinen Geschäftsbedingungen, den Hinweisen zum Datenschutz und nutzungsbasierter Online-Werbung.