

Wohnung zum Kauf849000 €13.266 €/m²2 Zimmer • 64 m² • EG
849000 €
13.266 €/m²
2 Zimmer • 64 m² • EG
2-Zimmer Erdgeschosswohnung-genehmigte Ferienvermietung
Merkmale
- Erdgeschoss
- Personenaufzug
- Tiefgarage
- Gartenanteil
- Terrasse
- Bergblick
- Bad mit Dusche
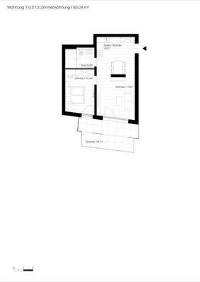
Grundrisse
Grundrisse
1 / 2
Realisiere Dein Projekt
Bausubstanz und Energie
Energieausweis
A+
- Baujahr2026
- Zustand der ImmobilieNeubau
- HeizungsartFuĂźbodenheizung
- EnergieträgerGas, Luft-/Wasser-Wärmepumpe
Preisdetails
Kaufpreis
849000 €
13.265,63 €/m²
Preis pro Stellplatz
35000 €
Provision für Käufer
3,57% inkl. MwSt. vom beurkundeten Kaufpreis
Geschätzte Gesamtkosten
926.004 €1
Kaufpreis
849.000 €
Kaufnebenkosten
77.004 €
2Notarkosten (1,5%)
12.735 €
Grunderwerbsteuer (3,5%)
29.715 €
Provision für Käufer (3,57%)
30.309 €
Grundbucheintrag (0,5%)
4.245 €
1Der angezeigte Wert ist eine automatisch berechnete Schätzung von immowelt.
2Bei den Angaben handelt es sich um ortsübliche Werte. Individuelle Kosten können abweichen.
Lage

Garmisch, Garmisch-Partenkirchen (82467)
Der Anbieter hat die genaue Adresse nicht freigegeben
Weitere Informationen
Weitere Services
Lust auf eine Besichtigung?
Eine Frage zur Immobilie?
Ăśber den Anbieter
Am Kurpark 9, 82467 Garmisch Partenkirchen
10 Jahre Partnerschaft

Herr Tizian SchattoDein Kontakt
Online-ID: 2lds557
Referenznummer: W-030UFO


ENGEL & VĂ–LKERS BĂĽro Garmisch-Partenkirchen
Bewertung: 4,8 von 5 Sternen
Wie zufrieden bist du mit dieser Seite (nicht mit der Immobilie selbst)?

