
Evernest GmbH
Andre Dottschadis
+49 ···
Nr. anzeigenPreise & Kosten
Provision für Käufer
3.57 inkl. MwSt.
Bei Abschluss eines notariellen Kaufvertrages ist eine Käuferprovision vom Käufer in Höhe von 3.57 % inkl. MwSt. aus dem Kaufpreis fällig.
Lage
Läsikow, ein malerisches Runddorf wendischen Ursprungs in der historischen Mark Brandenburg, beeindruckt mit seiner einzigartigen, bis heute erhaltenen Dorfstruktur. Im 12. Jahrhundert, während der Germanisierung durch Markgraf Albrecht den Bären, entwickelte sich der Ort zu einer lebendigen Siedlung und wurde 1491 erstmals...
Das Haus
Kategorie
Villa
Baujahr
1845
Energie & Heizung
Warum sehe ich diese Anzeige? – Du siehst diese Anzeige basierend auf Ihrer Navigation auf unserer Website und den Suchkriterien, die du verwendet hast.
Energieausweistyp
Bedarfsausweis
Gebäudetyp
Wohngebäude
Effizienzklasse
H
Endenergiebedarf
371,30 kWh/(m²·a)
Weitere Energiedaten
Energieträger
Öl
Details
Objektbeschreibung
Diese einzigartige Immobilie besticht durch ihre idyllische Lage in einem Runddorf mit einem unverbaubaren Blick auf
Felder, Wiesen und Alleen. Sie bietet Ihnen exklusive Aufenthaltsqualität auf einer Grundstücksfläche von ca. 22.802
m². Das lichtdurchflutete Haus verfügt auf einer Wohnfläche von ca. 189 m² im...
Ausstattung
- Preußisches Mittelflur-Landhaus
- 5 Zimmer
- 3 Schlafzimmer
- Baujahr: 1845
- Aufwändig saniert und modernisiert (1994 bis 1996)
- Wohnfläche: ca. 189 m²
- Ausbaureserve: ca. 140 m² im Dachgeschoss mit bis zu 5 Meter Deckenhöhe
- Stallgebäude: ca. 213 m² Fläche (ausbaugeeignet)
- Etwa 40 m² große...
Weitere Informationen
Stichworte
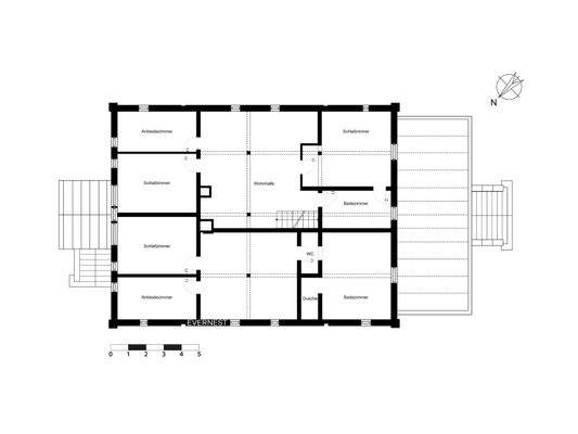
Stellplatz vorhanden, Nutzfläche: 183,78 m², Anzahl der Schlafzimmer: 3, Anzahl der Badezimmer: 2, Anzahl der separaten WCs: 1, Anzahl Terrassen: 1, Gartenfläche: 8.000,00 m², 3 Etagen
Anbieter der Immobilie
Online-ID: 2ldul5w
Referenznummer: L-8BMOD8W
Finde Angebote wie dieses
Hier geht es zu unserem Impressum, den Allgemeinen Geschäftsbedingungen, den Hinweisen zum Datenschutz und nutzungsbasierter Online-Werbung.