

Kern Bauträger GmbH
Frau M. Barton
065 ···
Nr. anzeigenPreise & Kosten
Provision für Käufer
provisionsfrei
Lage
Das Baugrundstück befindet sich in Masholder, einem Ortsteil von Bitburg, etwa 4 km südlich des Bitburger Zentrums und ca. 30 Kilometer nördlich von Trier entfernt. An Masholder fließt der Masholderbach - ein Zufluss der Nims - vorbei.
Masholder hat direkte Anbindung an die B 51 die in südlicher Richtung nach Trier...
Das Haus
Kategorie
Einfamilienhaus
Baujahr
2026
Energie & Heizung
Warum sehe ich diese Anzeige? – Du siehst diese Anzeige basierend auf Ihrer Navigation auf unserer Website und den Suchkriterien, die du verwendet hast.
Energieausweistyp
Bedarfsausweis
Gebäudetyp
Wohngebäude
Effizienzklasse
A+
Endenergiebedarf
21,20 kWh/(m²·a)
Weitere Energiedaten
Energieträger
Elektro
Heizungsart
Fußbodenheizung, Zentralheizung
Details
Objektbeschreibung
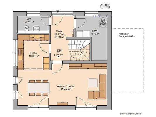
Das Architektenhaus Puro im Bauhausstil bietet auf zwei Vollgeschossen mit 130 m² Wohnfläche ein Elternschlafzimmer, zwei Kinderschlafzimmer, ein großzügiges Familienbadezimmer mit einer großen, bodengleich gefliesten Dusche und einem Doppelwaschtisch, eine Diele, WC, Flur und einen Hauswirtschaftsraum für die nötigen...
Ausstattung
4 Zimmer, offene Küche, Diele, WC, Flur, Bad, Hauswirtschaftsraum
Das gezeigte Traumhaus im Überblick:
+ Schlüsselfertiges Massivhaus im Sinne der Ausstattungsbeschreibung "Edition 25"
+ Zukunftsorientierte Energieausstattung in Form einer Luft-Wasser-Wärmepumpe und Fußbodenheizung sowie einer kontrollierten...
Weitere Informationen
Sonstiges
Kern-Haus baut individuelle und massive Architektenhäuser zu einem attraktiven Preis-Leistungs-Verhältnis - und das bereits mit einer Erfahrung seit 1980. Bei Kern-Haus erhalten Sie unter anderem 10 Jahre Gewährleistung auf die wesentlichen Bauleistungen, bis zu 24 Monate Preissicherheit sowie eine dokumentierte...
Anbieter der Immobilie
Kern Bauträger GmbH
Waldstraße 17, 54340 Riol

Online-ID: 2ldy854
Referenznummer: TR 5444
Finde Angebote wie dieses
Hier geht es zu unserem Impressum, den Allgemeinen Geschäftsbedingungen, den Hinweisen zum Datenschutz und nutzungsbasierter Online-Werbung.