
Trummer Immobilien GmbH & Co. KG
Herr Roland Trummer
094 ···
Nr. anzeigenPreise & Kosten
Kaution
1.965,00 Soweit nicht anders erwähnt 3 Monatsmieten
Provision für Mieter
Ortsübliche Provision vom Käufer/Mieter nur im Erfolgsfalle
Warum sehe ich diese Anzeige? – Du siehst diese Anzeige basierend auf Ihrer Navigation auf unserer Website und den Suchkriterien, die du verwendet hast.
Lage
Bad Abbach
Büro-/Praxisfläche
Kategorie
Bürogebäude
Baujahr
1992
Bezug
sofort
Energie & Heizung
Warum sehe ich diese Anzeige? – Du siehst diese Anzeige basierend auf Ihrer Navigation auf unserer Website und den Suchkriterien, die du verwendet hast.
Weitere Energiedaten
Heizungsart
Zentralheizung
Details
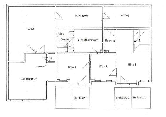
Objektbeschreibung
Kurzbeschreibung
Gerne stehen wir für eine Besichtigung zur Verfügung.
Objekt
Die Büro- bzw. Praxisfläche befindet sich in einer Sackgasse in einem Wohngebiet in Bad Abbach. Eine Bushaltestelle befindet sich in der Nähe. Durch die nahegelegene Autobahn A 93 und den Bahnhof besteht eine hervorragende Anbindung an...
Ausstattung
Lage: Bad Abbach
Mietpreis: EUR 655,-
Nebenkosten: EUR 300,-
Fläche: ca. 77 m²
Zimmeranzahl: 5
Baujahr: 1992
letzte Modernisierung: 2023
Kaution: EUR 1.965,-
Geschoss(e): EG
Bezug: sofort
Stellplatzanzahl: 3
Stellplatzpreis: EUR 40,-
Fußweg zum RVV: 5 min.
Fahrtzeit Bahnhof...
Preisinformation
1 Stellplatz, Miete: 40,00 EUR
Nettokaltmiete: 655,00 EUR
Weitere Informationen
Sonstiges
Um eine schnelle Bearbeitung zu gewähren benötigen wir Ihre Telefonnummer sowie Ihre komplette Adresse.
Stichworte
Stellplatz vorhanden, Nutzfläche: 77,00 m², Bundesland: Bayern, modernisiert: 2023, Distanz zur Autobahn: 2, Distanz zum Bus: .5, Distanz zum Hauptbahnhof: 10, Distanz zum Flughafen:...
Anbieter der Immobilie

Trummer Immobilien GmbH & Co. KG
Online-ID: 2ldym5c
Referenznummer: VB 3918b
Finde Angebote wie dieses
Hier geht es zu unserem Impressum, den Allgemeinen Geschäftsbedingungen, den Hinweisen zum Datenschutz und nutzungsbasierter Online-Werbung.