

Blank Immobilien GmbH
Herr Philipp Blank
017 ···
Nr. anzeigenPreise & Kosten
Provision für Mieter
provisionsfrei
Warum sehe ich diese Anzeige? – Du siehst diese Anzeige basierend auf Ihrer Navigation auf unserer Website und den Suchkriterien, die du verwendet hast.
Lage
Das Neubauprojekt "Petersen Park" liegt im Hamburger Stadtteil Groß Borstel, nur wenige Autominuten vom Flughafen entfernt. Das Wohn- und Gewerbeobjekt auf dem Baufeld 4b wird nördlich durch die Papenreye und südlich durch die Stavenhagenstraße erschlossen. Kunden- und Lieferverkehre nutzen die Zufahrt von der Papenreye...
Büro-/Praxisfläche
Bezug
Spätsommer 2026
Geschoss
1. Geschoss
Energie & Heizung
Warum sehe ich diese Anzeige? – Du siehst diese Anzeige basierend auf Ihrer Navigation auf unserer Website und den Suchkriterien, die du verwendet hast.
Gebäudetyp
Nicht-Wohngebäude
Weitere Energiedaten
Haustyp
KfW 40
Details
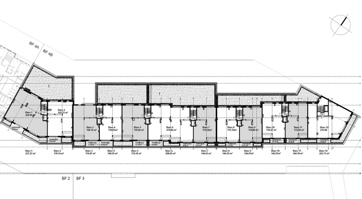
Objektbeschreibung
Bei dem Neubauprojekt handelt es sich um ein modernes Hybridgebäude in energieeffizienter KfW-40-Bauweise, das Wohnraum und Gewerbe unter einem Dach vereint.
Die zur Vermietung stehenden Gewerbeflächen befinden sich im Erdgeschoss und 1. Obergeschoss und bieten insgesamt ca. 5.200 m² Mietfläche.
Im 1...
Weitere Informationen
Besichtigung
Sehr gern stehen wir Ihnen für Fragen oder individuelle Besichtigungstermine zur Verfügung.
Wir freuen uns auf Ihre Anfrage!
Sonstiges
Alle Angaben sind ohne Gewähr und basieren ausschließlich auf Informationen, die uns von unserem Auftraggeber zur Verfügung gestellt wurden.
Wir übernehmen...
Anbieter der Immobilie

Online-ID: 2ldzs5f
Finde Angebote wie dieses
Hier geht es zu unserem Impressum, den Allgemeinen Geschäftsbedingungen, den Hinweisen zum Datenschutz und nutzungsbasierter Online-Werbung.