
MAT-Immobilien Inh. Heinz Tings
Herr Guido Moers
024 ···
Nr. anzeigenPreise & Kosten
Provision für Käufer
zzgl. 1.785 % Käuferprovision (inkl. MwSt.) inkl. MwSt.
Lage
Beste Verkehrsanbindungen in unmittelbarer Nähe ermöglichen Bus- und Zugfahrten in die Nachbarkommunen sowie in die angrenzenden Länder Belgien und Niederlande. Die Autobahnen A 4 und A 44 grenzen an das Stadtgebiet. Kindergarten und Grundschule sind in wenigen Minuten erreichbar.
Einfach eine perfekte Nahversorgung -...
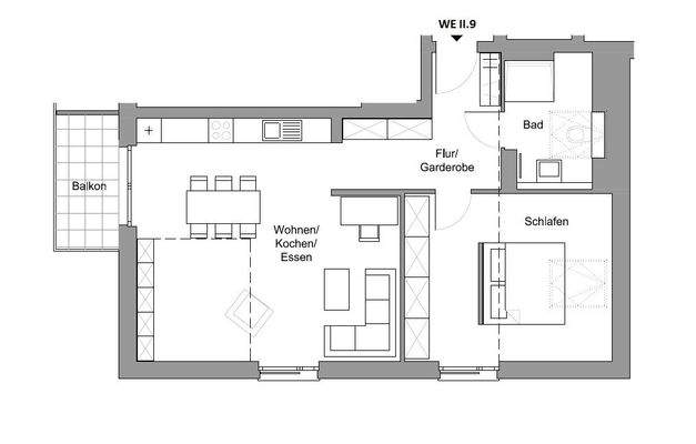
Die Wohnung
Wohnungslage
2. Geschoss (Dachgeschoss)
Bezug
nach Absprache
Wohnanlage
Energie & Heizung
Warum sehe ich diese Anzeige? – Du siehst diese Anzeige basierend auf Ihrer Navigation auf unserer Website und den Suchkriterien, die du verwendet hast.
Energieausweistyp
Bedarfsausweis
Gebäudetyp
Wohngebäude
Baujahr laut Energieausweis
2024
Wesentliche Energieträger
PELLET
Gültigkeit
bis 22.11.2034
Endenergiebedarf
75,00 kWh/(m²·a)
Weitere Energiedaten
Energieträger
Pellets
Heizungsart
Fußbodenheizung
Details
Objektbeschreibung
Ihr neues Zuhause beeindruckt schon von außen durch modernste Architektur und viel Lebensraum. Die helle Fassade mit bodentiefen Fenstern schafft eine lichtdurchflutete und offene Atmosphäre, in der Sie und Ihre Familie sich einfach wohlfühlen. Auch im Inneren des Neubaus verspricht Ihr neues Eigenheim Qualität und Klasse...
Ausstattung
Ihre Dachgeschosswohnung überzeugt u. a. durch folgende Highlights:
. barrierefreier Zugang
. Wohnfläche ca. 69 m²
. sonniger Balkon
. bodengleiche Dusche
. Fußbodenheizung
. Fenster mit dreifach Verglasung
. elektrische Rollläden
. Aufzug in alle Geschosse (bis ins Kellergeschoss)
...
Preisinformation
1 Stellplatz, Kaufpreis: 14.500,00 EUR
Weitere Informationen
Sonstiges
Es liegt ein Energiebedarfsausweis vor.
Dieser ist gültig bis 22.11.2034.
Endenergiebedarf beträgt 75.00 kwh/(m²*a).
Wesentlicher Energieträger der Heizung ist Pellet.
Das Baujahr des Objekts lt. Energieausweis ist 2024.
Gerne stehen wir Ihnen für Fragen oder die Besichtigung unserer...
Anbieter der Immobilie
MAT-Immobilien Inh. Heinz Tings
Münsterstraße 225, 52076 Aachen
Online-ID: 2le2j54
Referenznummer: MA2025-758-II.9
Finde Angebote wie dieses
Hier geht es zu unserem Impressum, den Allgemeinen Geschäftsbedingungen, den Hinweisen zum Datenschutz und nutzungsbasierter Online-Werbung.