
PURPLERHINO REAL ESTATE GmbH
Herr PURPLERHINO Real Estate GmbH Herrn Manuel Vohwinkel
+49 ···
Nr. anzeigenPreise & Kosten
Provision für Mieter
Bitte beachte, das Angebot kann bei Vertragsabschluss die Zahlung einer Provision beinhalten. Weitere Informationen erhältst Du vom Anbieter.
Warum sehe ich diese Anzeige? – Du siehst diese Anzeige basierend auf Ihrer Navigation auf unserer Website und den Suchkriterien, die du verwendet hast.
Lage
Das Gewerbeobjekt liegt in der idyllischen Gemeinde Beverstedt. Lunestedt besticht durch seine ländliche Idylle und gleichzeitig gute Verkehrsanbindungen. Mit einer harmonischen Kombination aus Natur und Infrastruktur bietet die Lage eine hohe Lebensqualität. Das Objekt liegt direkt an der Westerbeverstedter Straße und bietet...
Die Industriefläche
Kategorie
Lagerhalle
Energie & Heizung
Warum sehe ich diese Anzeige? – Du siehst diese Anzeige basierend auf Ihrer Navigation auf unserer Website und den Suchkriterien, die du verwendet hast.
Wärme
Strom
Energieausweistyp
Verbrauchsausweis
Gebäudetyp
Nicht-Wohngebäude
Baujahr laut Energieausweis
1992
Wesentliche Energieträger
Gas
Gültigkeit
21.12.2020 bis 20.12.2030
Endenergieverbrauch (Wärme)
58,30 kWh/(m²·a) - Warmwasser enthalten
Endenergieverbrauch (Strom)
18,70 kWh/(m²·a) - Warmwasser enthalten
Weitere Energiedaten
Energieträger
Gas
Details
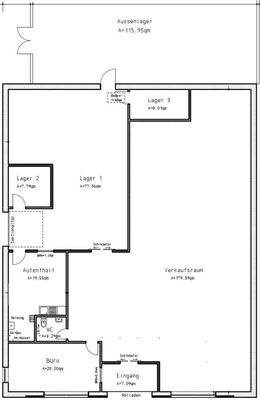
Objektbeschreibung
Bei dem hier angebotenen Gewerbeobjekt handelt es sich um einen ehemaligen Getränkehandel. Auf ca. 319 m² Innenfläche sowie ca. 116 m² Außenfläche bieten sich dem neuen Mieter unterschiedlichste Nutzungsmöglichkeiten.
Anbieter der Immobilie
PURPLERHINO REAL ESTATE GmbH
Rosemeyerstr. 14, 44139 Dortmund
Online-ID: 2le2v5y
Referenznummer: 50146 (1/132)
Finde Angebote wie dieses
Hier geht es zu unserem Impressum, den Allgemeinen Geschäftsbedingungen, den Hinweisen zum Datenschutz und nutzungsbasierter Online-Werbung.