
IMMORath
Herr Adrian Engler
004 ···
Nr. anzeigenPreise & Kosten
Provision für Käufer
3,57% inkl. MwSt.
Lage
Das charmante Einfamilienhaus befindet sich in einer idyllischen Lage in der Gemeinde Efringen-Kirchen im schönen Baden-Württemberg. Die Umgebung ist geprägt von einer malerischen Landschaft, die sowohl Ruhe als auch eine gute Anbindung bietet. Das Haus liegt nur etwa 10 Minuten vom lebendigen Zentrum von Efringen-Kirchen...
Das Haus
Kategorie
Reihenendhaus
Baujahr
1920
Bezug
Frei nach Absprache
Energie & Heizung
Warum sehe ich diese Anzeige? – Du siehst diese Anzeige basierend auf Ihrer Navigation auf unserer Website und den Suchkriterien, die du verwendet hast.
Energieausweistyp
Verbrauchsausweis
Gebäudetyp
Wohngebäude
Baujahr laut Energieausweis
1870
Wesentliche Energieträger
GAS
Gültigkeit
bis 03.09.2035
Effizienzklasse
D
Endenergieverbrauch
112,70 kWh/(m²·a)
Weitere Energiedaten
Energieträger
Gas
Heizungsart
Zentralheizung
Details
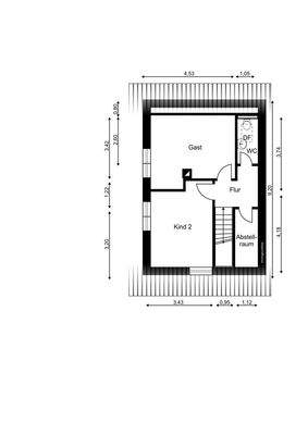
Objektbeschreibung
- Reihenendhaus zum Kauf in Efringen-Kirchen in einer WEG
- Baujahr: 1920, kernsaniert im Jahr 2000
- Gepflegter Zustand mit ca. 184 m² Wohnfläche auf ca. 300 m² Grundstück
- 6 Zimmer, ein Badezimmer und ein Gäste-WC
- Großzügige Wohnfläche mit zwei Terrassen
- teilweise unterkellert, Waschküche vorhanden
-...
Preisinformation
1 Stellplatz
Weitere Informationen
Sonstiges
Sie haben Interesse und möchten zeitnah die Immobilie besichtigen? Kein Problem! Schicken Sie uns gerne Ihre Anfrage, Sie werden von der Immobilie begeistert sein!
Alle vom Eigentümer bereitgestellten Informationen werden als zuverlässig erachtet, aber nicht garantiert und sollten unabhängig verifiziert...
Anbieter der Immobilie
Online-ID: 2le3m5h
Referenznummer: IR0825351
Finde Angebote wie dieses
Hier geht es zu unserem Impressum, den Allgemeinen Geschäftsbedingungen, den Hinweisen zum Datenschutz und nutzungsbasierter Online-Werbung.