
Lenz Wohnbau GmbH
Frau Andrea Verstappen
004 ···
Nr. anzeigenPreise & Kosten
Provision für Käufer
provisionsfrei
Die Wohnung
Kategorie
Terrassenwohnung
Wohnungslage
1. Geschoss
Bezug
Frühjahr 2026
Wohnanlage
Energie & Heizung
Warum sehe ich diese Anzeige? – Du siehst diese Anzeige basierend auf Ihrer Navigation auf unserer Website und den Suchkriterien, die du verwendet hast.
Heizwärmebedarf (HWB)
30,51 kWh/(m²·a)
Gesamtenergieeffizienz (fGEE)
0,60
Weitere Energiedaten
Energieträger
Erdwärme
Heizungsart
Fußbodenheizung
Details
Weitere Informationen
Schöne 3-Zimmer-Wohnung!
In Feldkirch-Altenstadt, Rebbündten 17 wurde in attraktiver Lage eine hochwertige Wohnanlage erbaut!
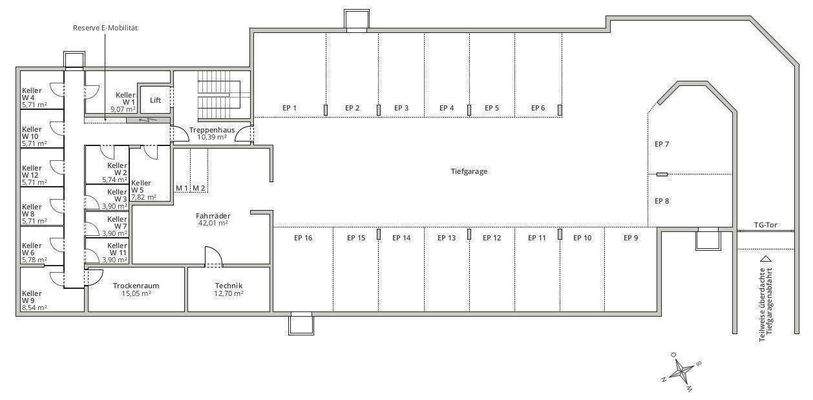
- hochwertige Wohnanlage mit nur 12 Wohnungen
- Lift und Tiefgarage
- Fußbodenheizung über Erdsonden-Wärmepumpe
- passive Kühlung über Fußbodenheizung
- Photovoltaik-Anlage zur...
Dokumente
Anbieter der Immobilie
Lenz Wohnbau GmbH
Treiet 1, 6837 WEILER
Online-ID: 2le9m5u
Finde Angebote wie dieses
Günstige Immobilienfinanzierung einfach online berechnen
Persönliches Angebot berechnenWarum sehe ich diese Werbung? – Du siehst diese Werbung basierend auf Deiner Navigation auf unserer Website und der von Dir verwendeten Suchkriterien.
Diese Werbung wird bezahlt von durchblicker
Werbung melden
Hier geht es zu unserem Impressum, den Allgemeinen Geschäftsbedingungen, den Hinweisen zum Datenschutz und nutzungsbasierter Online-Werbung.