
Drenkhahn Immobilien GmbH
Frau Sascha Weitzel
+49 ···
Nr. anzeigenPreise & Kosten
Provision für Käufer
3,57 % inkl. 19 % gesetzl. MwSt. vom Kaufpreis
Der Makler-Vertrag mit unserem Unternehmen entsteht durch schriftliche Vereinbarung oder durch die Inanspruchnahme unserer Maklertätigkeit. Weitere Informationen siehe Provisionshinweis.
Lage
Rövershagen liegt im Landkreis Rostock, nur wenige Kilometer von der Ostseeküste und der Hansestadt Rostock entfernt. Die Gemeinde verbindet eine ruhige, naturnahe Wohnlage mit einer guten infrastrukturellen Anbindung und eignet sich besonders für Paare und Familien, die Wert auf ein familienfreundliches Umfeld legen. Durch...
Das Haus
Kategorie
Einfamilienhaus
Bezug
2025
Energie & Heizung
Warum sehe ich diese Anzeige? – Du siehst diese Anzeige basierend auf Ihrer Navigation auf unserer Website und den Suchkriterien, die du verwendet hast.
Weitere Energiedaten
Heizungsart
Luft-/Wasser-Wärmepumpe
Details
Objektbeschreibung
Neubau-Einfamilienhaus in Rövershagen - Erstbezug mit gehobener Ausstattung
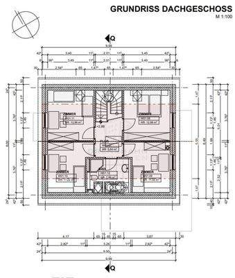
Entdecken Sie Ihr neues Zuhause in Rövershagen! Dieses charmante Einfamilienhaus befindet sich aktuell im Bau und bietet Ihnen auf ca. 140,51 m² Wohnfläche modernes Wohnen im Erstbezug. Die Fertigstellung ist für das 2. Quartal 2026...
Ausstattung
- 1 Vollbad mit Badewanne und Dusche
- 1 Bad mit Dusche (EG)
- moderne Einbauküche
- Malervlies in allen Räumen
- Design-Fußbodenbelag
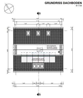
- zusätzlicher Stauraum im Spitzboden zu erreichen über Einschubtreppe
- Kaminanschluss (vorbereitet)
- Terrasse
- 2 PKW-Stellplätze direkt neben dem Haus
-...
Weitere Informationen
Provisionshinweis
3,57 % inkl. 19 % gesetzl. MwSt. vom Kaufpreis
Der Makler-Vertrag mit unserem Unternehmen entsteht durch schriftliche Vereinbarung oder durch die Inanspruchnahme unserer Maklertätigkeit. Die Vertragsbasis bildet das Objekt-Exposé. Die Käuferprovision ist bei notariellem Vertragsabschluss verdient und...
Anbieter der Immobilie
Online-ID: 2lef25p
Referenznummer: E-1001122
Finde Angebote wie dieses
Hier geht es zu unserem Impressum, den Allgemeinen Geschäftsbedingungen, den Hinweisen zum Datenschutz und nutzungsbasierter Online-Werbung.