

René Müller - Der ImmobilienCoach
Herrn René Müller
089 ···
Nr. anzeigenPreise & Kosten
Provision für Käufer
3,57% inkl. MwSt.
3,57% inkl.19% vom Käufer zu zahlen.
Lage
1A-Lage
Familienfreundliches Wohngebiet - Hubertusstraße / Anliegerstraße
Grundstück an der Bahn gelegen.
Hubertusstraße
82131 Gauting
Willkommen in Gauting, Willkommen im 5 - Seenland
www.gauting.de
Alles Fußläufig
2 min Bus
5 min S-Bahn S6 Bahnhof Gauting
Schulen in...
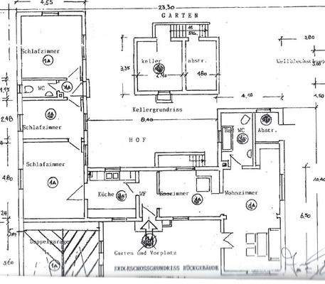
Das Grundstück
Details
Objektbeschreibung
Sonniges Grundstück mit Altbestand und mit altem Baumbestand in Gauting Hubertusstraße /Grundstück an der Bahn gelegen.
Das Haus ist geräumt eine Neubebauung kann zeitnah erfolgen.
Bebauungsplan vorhanden. Das Haus zu erhalten ist denkbar aber schwierig - aufgrund des Zustands.
Anschauen lohnt sich! Eine...
Dokumente
Anbieter der Immobilie
René Müller - Der ImmobilienCoach
Gartenstraße 48, 82110 Germering

Online-ID: 2leq253
Referenznummer: 5177#FfVL1
Finde Angebote wie dieses
Hier geht es zu unserem Impressum, den Allgemeinen Geschäftsbedingungen, den Hinweisen zum Datenschutz und nutzungsbasierter Online-Werbung.